
Kleibergstraat 50
Overzicht
Tussenwoning, met onder andere vier slaapkamers, met veel mogelijkheden! Ben jij iemand die graag de handen uit de mouwen steekt en een woning volledig naar eigen smaak wil maken? Dan is deze tussenwoning in de rustige wijk Op de Heide in Tegelen wellicht wat voor jou! De woning biedt volop ruimte en mogelijkheden met onder…
Kenmerken
Foto's
Omschrijving
Tussenwoning, met onder andere vier slaapkamers, met veel mogelijkheden!
Ben jij iemand die graag de handen uit de mouwen steekt en een woning volledig naar eigen smaak wil maken? Dan is deze tussenwoning in de rustige wijk Op de Heide in Tegelen wellicht wat voor jou!
De woning biedt volop ruimte en mogelijkheden met onder andere vier slaapkamers, een lichte woonkamer, dichte keuken en zowel een voor- als achtertuin. De achtertuin beschikt over een vrijstaande stenen berging en vanuit beide tuinen is er toegang door middel van een vrije achterom.
De woning ligt in de rustige woonwijk “Op de Heide” in Tegelen. Alle dagelijkse voorzieningen zoals winkels en scholen liggen op steenworp afstand. Het centrum van Tegelen en ook het centrum van Venlo liggen op korte afstand.
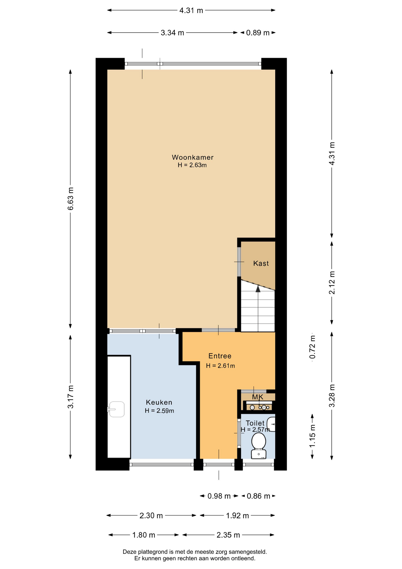
Begane grond
In de hal zijn de meterkast en het toilet met fonteintje en raam aanwezig. In de hal en het toilet ligt een tegelvloer.
De ruime woonkamer (ca. 26m²) is voorzien van een trapkast en loopdeur naar de omheinde achtertuin. Door de raam is een fijne natuurlijke lichtinval. In de dichte keuken (ca. 7m²) ligt een tegelvloer.
1ste verdieping
De overloop biedt toegang tot de 3 slaapkamers (ca. 9m², 9m² en 14m²) en de badkamer. De badkamer (ca. 4m²) is voorzien van een douche, toilet en wastafel.
2de verdieping
De tweede verdieping is bereikbaar door middel van een vaste trap. Zowel op de overloop als de 4de slaapkamer ligt een zeilvloer. Op de overloop zijn de cv-ketel en bergruimte aanwezig.
De 4de slaapkamer (ca. 13m²) is ruim en heeft een Velux dakraam en vaste wastafel met warm en koud water. Er is veel bergruimte aanwezig.
Tuin
Zowel aan de voor- als achterzijde bevindt zich een eigen tuin. De tuinen zijn voorzien van een vrije achterom en in de voortuin bevindt zich de vrijstaande stenen berging (ca. 6m²).
Bijzonderheden
– Houten kozijnen met dubbel glas.
Onderstaande clausules zullen worden opgenomen in de koopovereenkomst:
Staat van het onroerend goed, gebruik
Aan de verkoper is niet bekend dat in de onroerende zaak asbest is verwerkt, anders dan in de tijd waarin de onroerende zaak werd vervaardigd,, te doen gebruikelijk was. Bij eventuele verwijdering van de asbesthoudende materialen dienen op grond van milieuwetgeving speciale maatregelen te worden getroffen. Koper verklaart hiermee bekend te zijn en vrijwaart verkoper voor alle aansprakelijkheid die uit de aanwezigheid van enige asbesthoudende stof in de onroerende zaak kan voortvloeien.
Onderhoudstoestand woning
Verkoper heeft koper uitdrukkelijk geattendeerd op het feit dat hij het verkochte nooit zelf feitelijk heeft gebruikt en daardoor koper niet heeft kunnen informeren over eigenschappen van c.q. gebreken aan het verkochten waarvan hij op de hoogte zou zijn geweest als hij het verkochte zelf feitelijke had gebruikt. In dit kader zijn partijen uitdrukkelijk overeengekomen dat dergelijke eigenschappen c.q. gebreken voor risico en rekening van koper komen en dat bij vaststelling van de koopsom hiermee rekening is gehouden.
Ouderdomsclausule
Koper verklaart ermee bekend te zijn dat de betreffende woning meer dan 50 jaar oud is, wat betekend dat de eisen die aan de bouwkwaliteit gesteld gemogen worden aanzienlijk lager liggen dan bij nieuwere woningen. Tenzij de verkoper de kwaliteit ervan gegarandeerd heeft, staat hij niet in voor de kwaliteit van de vloeren, het dak, de leidingen voor elektriciteit, gas en water, de riolering, afwezigheid van ongedierte c.q. schimmels (houtworm, boktor, zwam, etc.) en de afwezigheid van doorslaand vocht en/of optrekkend vocht, asbest en asbesthoudende materialen.
Bouwtechnische keuring
Bouwkundige kwaliteitsgebreken worden geacht niet belemmerend te werken op het in artikel 6.3 omschreven woongebruik. Koper heeft de mogelijkheid om het gekochte bouwkundig te inspecteren aansprakelijkheden worden uitgesloten.
Titelbescheiden, Cessie van rechten
Verkoper heeft aan koper ter hand gesteld de aanwezige titelbewijzen en bescheiden als bedoeld in artikel 9 van Boek 7 van het Burgerlijk Wetboek
Verkrijging
Alle rechten die verkoper ter zake van het verkochte jegens derden, waaronder begrepen bouwers, (onder)aannemers, installateurs, architecten en leveranciers heeft of mocht verkrijgen, gaan over op koper en worden zoveel nodig bij deze verkoop geleverd aan koper, die de levering bij deze aanvaardt zonder dat verkoper tot vrijwaring verplicht is.
Nutsvoorzieningen
Koper is ermee bekend dat eventuele (her)aansluitkosten voor Nutsvoorzieningen in de woning voor zijn rekening zijn.
Baten en lasten
Alle baten en lasten komen voor rekening van koper met ingang van datum notarieel transport echter met in achtenmening van het bepaalde in artikel 8.
Let op; Voor deze woning geldt opkoopbescherming.
https://www.venlo.nl/opkoopbescherming
Overdracht
Bouwvorm
Indeling
Energie
Buitenruimte
Bergruimte

Op zoek naar een partner in vastgoed?
Maak kennis met VeTeBe
Wat je vraag ook is, VeTeBe staat voor je klaar.
"*" geeft vereiste velden aan



































