
Sloterbeekstraat 25
Overzicht
Ruime tussenwoning met volop mogelijkheden, gelegen aan de rand van het centrum van Venlo. Deze woning biedt veel potentie om geheel naar eigen wens te moderniseren en in te richten. Dankzij de aanwezigheid van twee woonlagen met eigen voorzieningen is dit een perfecte kans voor dubbele bewoning, werken aan huis of samen wonen met behoud…
Kenmerken
Foto's
Omschrijving
Ruime tussenwoning met volop mogelijkheden, gelegen aan de rand van het centrum van Venlo.
Deze woning biedt veel potentie om geheel naar eigen wens te moderniseren en in te richten. Dankzij de aanwezigheid van twee woonlagen met eigen voorzieningen is dit een perfecte kans voor dubbele bewoning, werken aan huis of samen wonen met behoud van privacy.
Indeling
Via de ruime hal met een doorlopende tegelvloer, welke is doorgelegd over de gehele begane grond, heb je toegang tot de halfopen keuken, woonkamer, slaapkamers, badkamer, kelder, meterkast en de trap naar de eerste verdieping.
De kelder biedt ruime opslagmogelijkheden en hier bevindt zich tevens de Intergas cv-ketel (bouwjaar 2025).
De woonkamer is voorzien van een tegelvloer en beschikt over openslaande deuren naar de westelijk gelegen stadstuin. Deze stadstuin is volledig omheind en uitgerust met een stenen barbecue en een wasbak met kraan.
De halfopen keuken, bereikbaar via zowel de hal als de woonkamer en afgewerkt met een karakteristieke boog, is voorzien van een 4-pits gasfornuis, afzuigkap, vaatwasser, combi-oven en spoelbak. In de woonkamer bevindt zich daarnaast een praktische bergruimte met aansluitingen voor witgoed.
Aan de hal grenzen twee ruime slaapkamers, waarvan de slaapkamer aan de voorzijde is voorzien van een rolluik. De badkamer op de begane grond beschikt over een inloopdouche, wastafel met meubel, toilet, verwarming en mechanische ventilatie.
Op de eerste verdieping bevindt zich een tweede woongedeelte met open keuken en witgoedaansluiting. De keuken is uitgerust met een inductiekookplaat, afzuigkap, oven en spoelbak. De royale slaapkamer ligt aan de voorzijde en er is tevens op deze verdieping een tweede badkamer aanwezig met inloopdouche, toilet en wastafel.
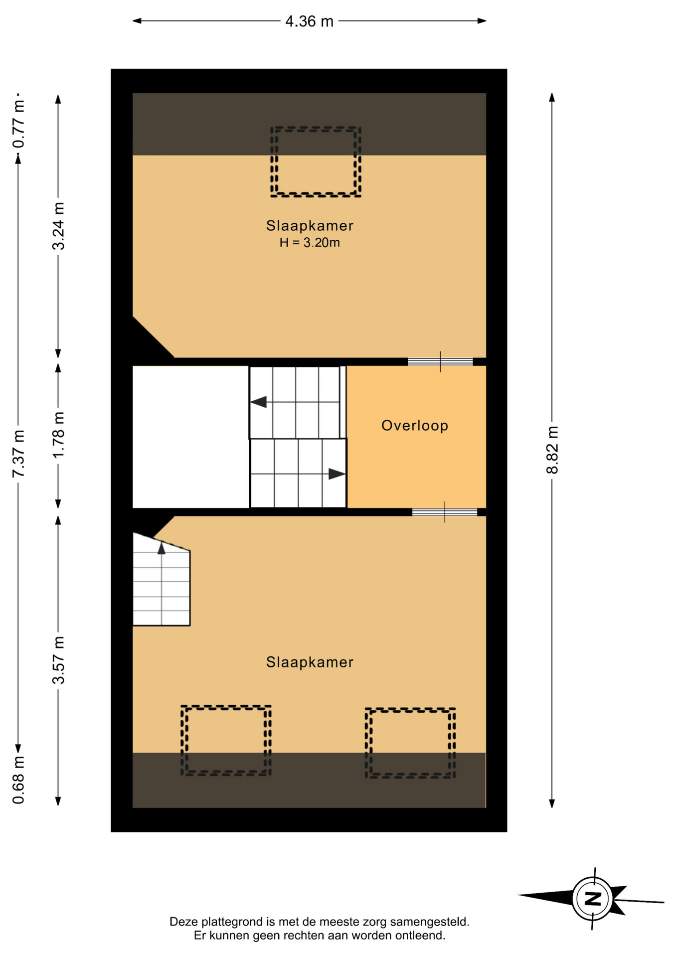
Via een vaste trap bereik je de tweede verdieping, waar zich nog twee slaapkamers bevinden. Eén van deze kamers beschikt over een vide, wat zorgt voor extra ruimtebeleving.
Dankzij de aanwezigheid van zowel een keuken als badkamer op de begane grond én de eerste verdieping is deze woning uitermate geschikt voor eventuele dubbele bewoning.
Bijzonderheden:
• Kunststof kozijnen met dubbel glas
• Intergas cv-ketel (2025)
• Geschikt voor dubbele bewoning
• Gehele woning voorzien van rolluiken
Al met al een zeer ruime woning met mogelijkheden!
Overdracht
Bouwvorm
Indeling
Energie
Buitenruimte
Bergruimte
Video's

Op zoek naar een partner in vastgoed?
Maak kennis met VeTeBe
Wat je vraag ook is, VeTeBe staat voor je klaar.
"*" geeft vereiste velden aan

































