
Spoorstraat 47
Overzicht
Karakteristieke tussenwoning op een fijne locatie nabij het centrum van Tegelen! Op korte afstand van het centrum van Tegelen ligt deze sfeervolle tussenwoning met veel karakter. De woning is goed onderhouden en heeft onder andere drie slaapkamers en een moderne badkamer uit 2024, voorzien van een ruime inloopdouche Achter de woning ligt een gezellige achtertuin/patio,…
Kenmerken
Foto's
Omschrijving
Karakteristieke tussenwoning op een fijne locatie nabij het centrum van Tegelen!
Op korte afstand van het centrum van Tegelen ligt deze sfeervolle tussenwoning met veel karakter. De woning is goed onderhouden en heeft onder andere drie slaapkamers en een moderne badkamer uit 2024, voorzien van een ruime inloopdouche
Achter de woning ligt een gezellige achtertuin/patio, waar je in alle rust kunt genieten van het buitenleven. Daarnaast zijn er diverse praktische extra’s, zoals een kelder en een vliering.
Een charmante woning met een ideale ligging, die comfort en karakter mooi combineert!
Kelder
Ruime provisiekelder bereikbaar vanuit de woonkamer.
Begane grond
De hal is voorzien van een tegelvloer. Vanuit hier is de woonkamer bereikbaar.
In de woonkamer ligt een pvc-vloer. Vanuit hier is de kelder direct bereikbaar. De trapopgang biedt toegang tot de eerste verdieping.
Ook in de keuken ligt een pvc-vloer. Er zijn een inductiekookplaat, afzuigkap en oven aanwezig. Het toilet is tevens voorzien van een pvc-vloer. Een loopdeur biedt toegang tot de tuin.
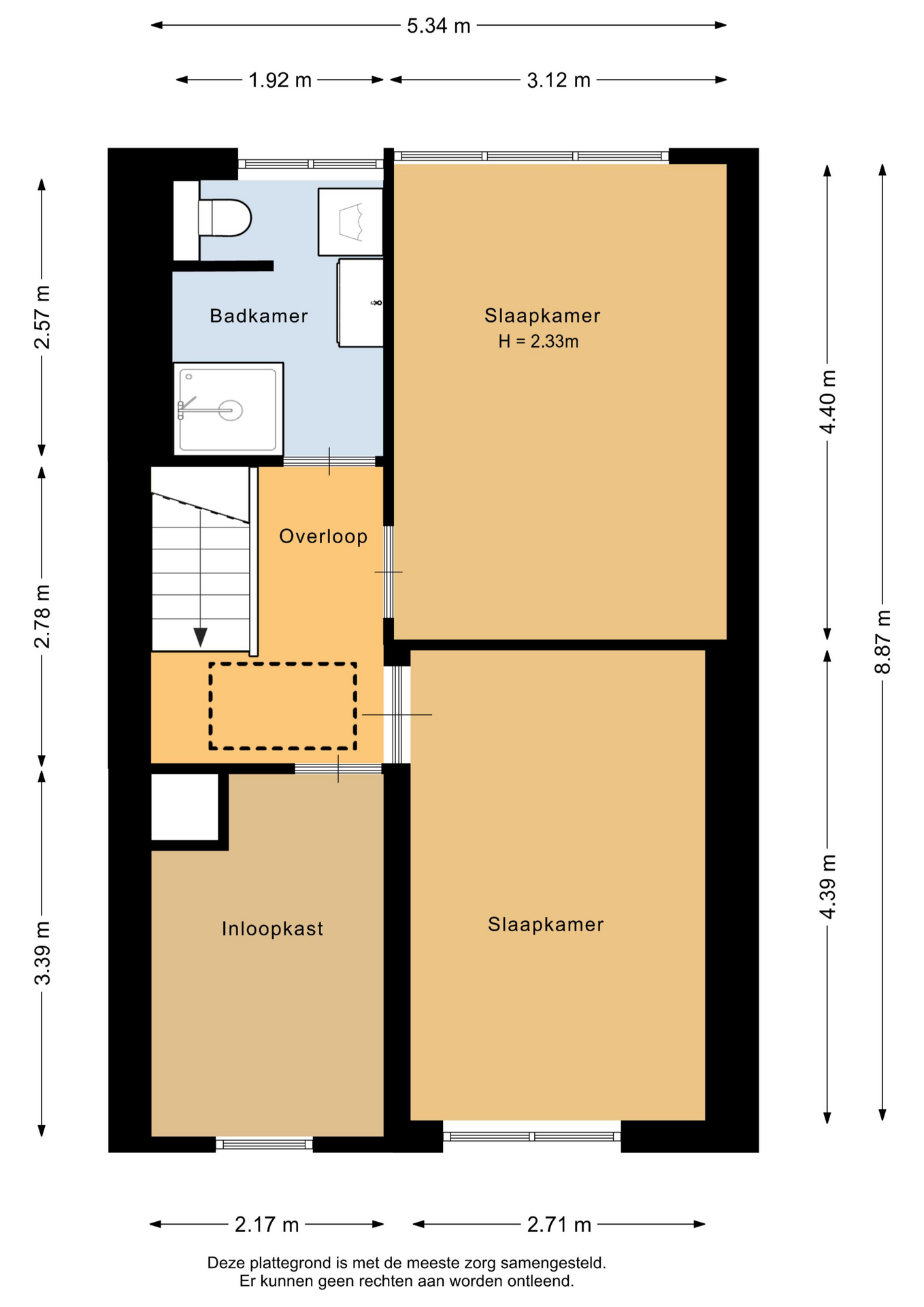
Eerste verdieping
De overloop en de drie slaapkamers zijn voorzien van een laminaatvloer. Alle slaapkamers hebben rolluiken.
De badkamer is geheel betegeld en voorzien van een grote inloopdouche, een wastafelmeubel, toilet en designradiator. Tevens is hier de witgoedaansluiting aanwezig. Ook hier is het raam voorzien van een rolluik.
Vliering
De bergvliering is bereikbaar door middel van de vlizotrap.
Patiotuin
De patiotuin is volledig omheind.
Bijzonderheden
– De woning is voorzien van kunststof en houten kozijnen met dubbel glas. Daarnaast zijn er nagenoeg overal rolluiken aanwezig.
– De badkamer is van september 2024.
– De cv-ketel is een huurketel. Het huurtarief per maand bedraagt €32,61. De lopende huurovereenkomst dient door de koper overgenomen te worden. Koper kan er ook voor kiezen om het toestel over te kopen van Volta Limburg. Hiervoor zal dan een offerte opgevraagd moeten worden.
Overdracht
Bouwvorm
Indeling
Energie
Buitenruimte
Bergruimte
Video's

Op zoek naar een partner in vastgoed?
Maak kennis met VeTeBe
Wat je vraag ook is, VeTeBe staat voor je klaar.
"*" geeft vereiste velden aan


























