
Verrijnenstraat 26
Overzicht
Een mooie tussenwoning met onder andere een diepe achtertuin en 3 slaapkamers, nabij het centrum van Blerick! Op een fijne locatie, vlakbij het centrum van Blerick én op korte afstand van het centrum van Venlo, ligt deze nette en goed onderhouden tussenwoning. De woning beschikt over drie slaapkamers, een praktische kelder en een royale zolder…
Kenmerken
Foto's
Omschrijving
Een mooie tussenwoning met onder andere een diepe achtertuin en 3 slaapkamers, nabij het centrum van Blerick!
Op een fijne locatie, vlakbij het centrum van Blerick én op korte afstand van het centrum van Venlo, ligt deze nette en goed onderhouden tussenwoning. De woning beschikt over drie slaapkamers, een praktische kelder en een royale zolder die mogelijkheden biedt voor bijvoorbeeld een extra slaapkamer, hobbyruimte of werkplek.
De diepe achtertuin is volledig omheind, voorzien van een grote overkapping, berging en een vrije achterom!
Kelder
De provisiekelder, met witgoedaansluiting, is bereikbaar vanuit de hal.
Begane grond
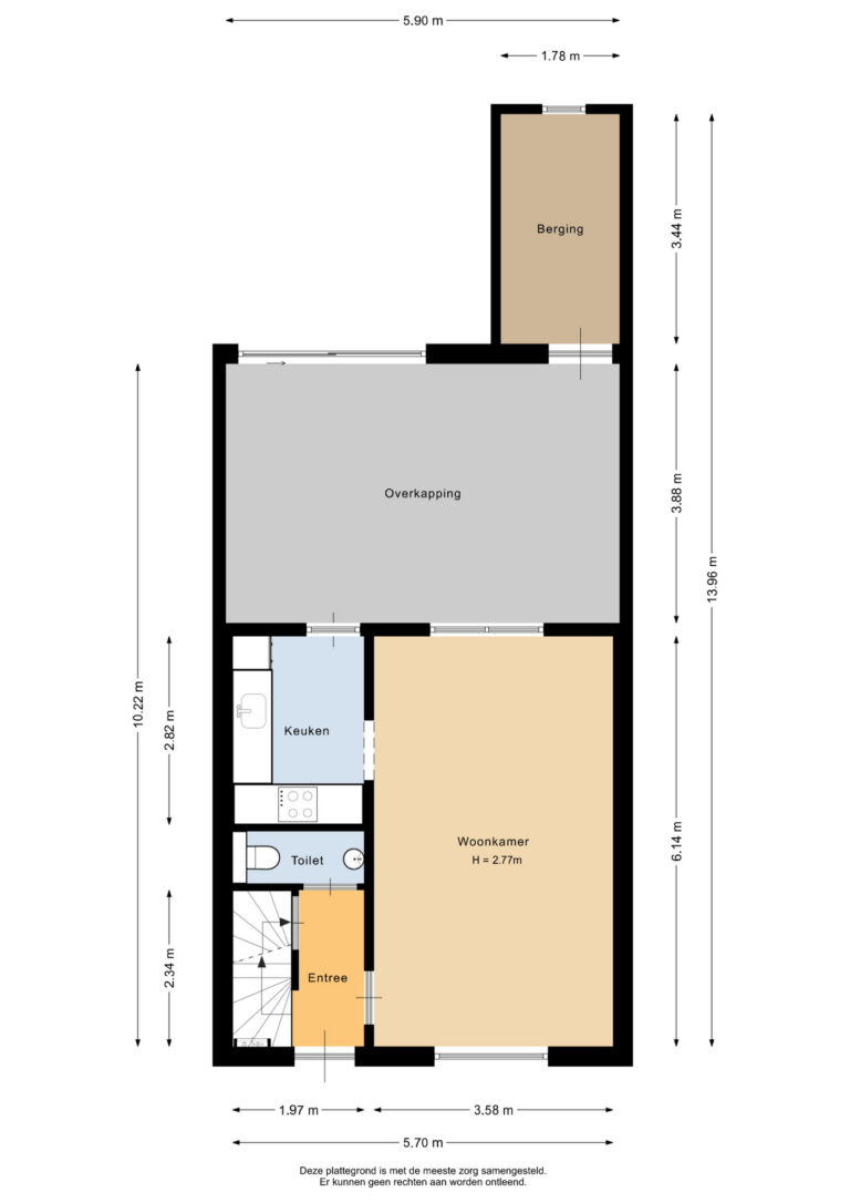
De begane grond is voorzien van een doorlopende pvc-vloer. In de woonkamer (ca. 22m²) is vloerverwarming aanwezig. De hal is voorzien van de meterkast en het toilet met fonteintje.
In de keuken (ca. 5,5m²) zijn een inductiekookplaat, afzuigkap, vaatwasser, combi oven/magnetron en koelkast aanwezig. De open keuken is in 2022 deels vernieuwd. Toen is ook alle apparatuur vervangen (m.u.v. de koelkast). Een loopdeur biedt toegang tot de grote overkapping in de tuin.
1ste verdieping
De eerste verdieping is voorzien van een doorlopende laminaatvloer. Op de overloop is airco aanwezig. Vanuit de overloop zijn de drie slaapkamers en de badkamer bereikbaar.
Alle slaapkamers (ca. 5m², 8,5m² en 13m²) zijn voorzien van rolluiken. Eén slaapkamer heeft een muurkast. In de badkamer (ca. 2m²) zijn een inloopdouche en wastafel aanwezig. Het raam zorgt voor voldoende daglicht en tevens natuurlijke ventilatie.
Zolder
De ruime zolder is bereikbaar door middel van de vlizotrap.
Op de overloop is de cv-ketel aanwezig. De aparte kamer/berging is voorzien van een Velux dakraam. Dit zou eventueel een vierde slaapkamer of bijvoorbeeld werkplek aan huis kunnen worden.
Tuin
De royale overkapping (ca. 23m²) is voorzien van inbouwverlichting. Vanuit hier is de stenen berging (ca. 6m²) met elektra bereikbaar.
De achtertuin is zeer diep en volledig omheind. Je geniet hier de hele dag door van de zon. Achterin is de vrije achterom aanwezig.
Bijzonderheden
– Kunststof kozijnen met dubbel glas.
– De woning is nagenoeg geheel voorzien van rolluiken. Op de begane grond zijn deze elektrisch (ook via app te bedienen).
– De airco is van 2023.
– De woonkamer is voorzien van vloerverwarming.
– In 2022 is alle elektra vernieuwd op de begane grond. Hier is toen ook alles opnieuw gestuukt.
– Het mandelig perceel (ca. 305m²) bevat het gezamenlijke pad dat achter de woning loopt en toegang biedt tot de vrije achterom.
Overdracht
Bouwvorm
Indeling
Energie
Buitenruimte
Bergruimte

Op zoek naar een partner in vastgoed?
Maak kennis met VeTeBe
Wat je vraag ook is, VeTeBe staat voor je klaar.
"*" geeft vereiste velden aan


































