
Wittebergstraat 23
Overzicht
Duurzaam wonen in een volledig gasloze en instapklare 2-onder-1 kapwoning met volop wooncomfort! Ben je op zoek naar een moderne, energiezuinige en uitstekend onderhouden woning? Deze instapklare 2-onder-1 kapwoning combineert comfort met duurzaamheid! De woning is volledig gasloos, optimaal geïsoleerd en voorzien van een warmtepomp, 15 zonnepanelen en vloerverwarming op de begane grond en 1ste…
Kenmerken
Foto's
Omschrijving
Duurzaam wonen in een volledig gasloze en instapklare 2-onder-1 kapwoning met volop wooncomfort!
Ben je op zoek naar een moderne, energiezuinige en uitstekend onderhouden woning? Deze instapklare 2-onder-1 kapwoning combineert comfort met duurzaamheid! De woning is volledig gasloos, optimaal geïsoleerd en voorzien van een warmtepomp, 15 zonnepanelen en vloerverwarming op de begane grond en 1ste verdieping.
De drie royale slaapkamers en moderne badkamer zorgen voor volop leefruimte, terwijl je in de ruime en fraai aangelegde achtertuin – volledig omheind en met vrije achterom – in alle rust kunt genieten. Met een eigen oprit, carport én garage is er ook aan praktische gemakken geen gebrek.
De woning ligt in een nieuwbouwwijk nabij rivier de Maas in een landelijke omgeving. Binnen enkele minuten rijden bereik je de dorpskern van Velden en Arcen en op ongeveer 10-15 minuten rijden ligt het centrum van Venlo.
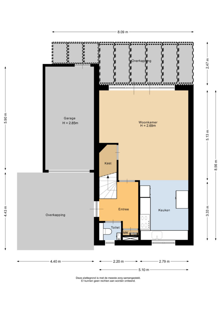
Begane grond
Over de gehele begane grond ligt een doorlopende pvc-vloer met vloerverwarming. De hal is voorzien van de meterkast (met grote waterfilter) en het toilet met fonteintje en raam.
De woonkamer (ca. 24m²) met open keuken heeft een fijne natuurlijke lichtinval. In de woonkamer is een trapkast t.b.v. extra bergruimte aanwezig. Aan beide zijdes zijn tv en/of internet aansluitingen aanwezig. De open keuken (ca. 9m²) is voorzien van een inductiekookplaat met geïntegreerde afzuiging, een vaatwasser, oven (stoom- en zelfreinigingsfunctie) en magnetron.
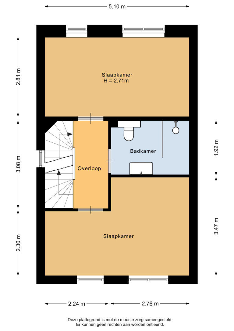
1ste verdieping
Ook hier ligt dezelfde doorlopende pvc-vloer met vloerverwarming. Vanuit de overloop zijn de twee slaapkamers en de badkamer bereikbaar.
Beide slaapkamers zijn groot (ca. 14m² en 15m²). De slaapkamer aan de voorzijde is voorzien van zonwering. In de gehele betegelde badkamer (ca. 5m²) zijn een inloopdouche, wastafelmeubel, toilet en designradiator aanwezig. Ook hier ligt vloerverwarming.
2de verdieping
De vaste trap biedt toegang tot de tweede verdieping. De tweede verdieping is één grote ruimte (ca. 20m²) die kan dienen als 3de slaapkamer of bijvoorbeeld hobbyruimte. De ruimte is voorzien van een laminaatvloer, een Velux dakraam met screen en hor en veel bergruimte.
In de berging zijn de witgoedaansluiting, warmtepomp en omvormer aanwezig.
Tuin
De voortuin en achtertuin zijn keurig aangelegd. Naast de voortuin bevindt zich de eigen oprit met carport en toegang tot de garage. Vanuit hier is de achtertuin bereikbaar door middel van de vrije achterom.
De achtertuin is zeer fraai aangelegd en volledig omheind. Er zijn meerdere elektra punten aanwezig. De overkapping is voorzien van inbouwverlichting. Ook is er een wateraansluiting onder de overkapping aanwezig. De pergola achter in de tuin heeft een lamellen dak met open en dicht functie. In de garage (ca. 18m²) is elektra aanwezig.
Bijzonderheden
– Volledig gasloos.
– Warmtepomp.
– 15 zonnepanelen.
– Vloerverwarming begane grond en 1ste verdieping.
– Houten kozijnen met HR++ glas.
– Beide trappen zijn bekleed met pvc.
– Alle binnendeuren zijn Svedex deuren; grotere opening en hoger.
– De gehele woning is voorzien van Livolo tip touch schakelaars.
– De alarminstallatie kan worden overgenomen.
Overdracht
Bouwvorm
Indeling
Energie
Buitenruimte
Bergruimte

Op zoek naar een partner in vastgoed?
Maak kennis met VeTeBe
Wat je vraag ook is, VeTeBe staat voor je klaar.
"*" geeft vereiste velden aan


































