
Bosheideweg 2
Overzicht
Unieke kans: Semi-bungalow op riant perceel met zwembad, serre en volledige privacy! Op zoek naar rust, ruimte en een woning die van alle gemakken is voorzien? Dan is deze degelijk gebouwde semi-bungalow gelegen op een perceel van maar liefst 3.356m² een absolute buitenkans! Met een uitgebouwde woonkamer, serre, zwembad, sauna, garage en relaxruimte geniet u…
Kenmerken
Foto's
Omschrijving
Unieke kans: Semi-bungalow op riant perceel met zwembad, serre en volledige privacy!
Op zoek naar rust, ruimte en een woning die van alle gemakken is voorzien? Dan is deze degelijk gebouwde semi-bungalow gelegen op een perceel van maar liefst 3.356m² een absolute buitenkans! Met een uitgebouwde woonkamer, serre, zwembad, sauna, garage en relaxruimte geniet u hier elke dag van een vakantiegevoel – en dat nabij groen, met optimale privacy.
De woning is bovendien voorzien van 32 zonnepanelen, waardoor het energieverbruik aanzienlijk gunstiger uitvalt. De ligging is idyllisch: aan een doodlopende weg, met vrij uitzicht aan zowel de voor- als achterzijde. Zodra u het perceel oprijdt, ervaart u meteen de rust en het groene karakter van dit bijzondere object!
Begane grond
– Entree/hal met plavuizen, trapopgang, garderobe en gastentoilet.
– Bijkeuken/berging met cv-ketel en aansluitingen voor witgoed.
– Badkamer volledig betegeld en voorzien van ligbad, douchecabine en wastafel.
– Slaapkamer 1 (ca. 2,35m x 4,07m) met laminaatvloer en rolluik.
– Slaapkamer 2 (ca. 5,89m x 4,07m) met schuifpui naar de serre, laminaatvloer en toegang tot de relaxruimte en souterrain;
– Relaxruimte (ca. 5,89m x 5,48m) met sauna (Fins + infrarood), douche, gashaard en schitterend uitzicht op de tuin.
– Woonkamer (ca. 77m²) met leistenen vloer, tv-hoek met cinewall, haardpartij en royale aanbouw met fenomenaal tuinzicht. Via de schuifpui toegang tot de serre.
– Serre (ca. 7,45m x 3m) met glazen schuifwanden, houtkachel en direct contact met de tuin.
– Keuken (ca. 4,07m x 2,35m) in U-opstelling met eiken fronten, hardstenen blad en diverse inbouwapparatuur.
Souterrain
– Ruime kelder (ca. 5,26m x 5,21m) met daglicht, verdeeld in opslagruimte en kantoor (ca. 2,98m x 2,48m).
Buitenleven
De tuin is werkelijk een droom voor liefhebbers van rust en groen:
– Zwembad met buitendouche, overkapping met glazen schuifdeuren en verwarmingsinstallatie (warmtepomp + matten).
– Houten tuinhuis met pomp/filterinstallatie en extra berging voor tuinmateriaal.
– Vijverpartij die een serene sfeer geeft en elk seizoen een fraai uitzicht biedt.
– Moestuin, tuinkas (met eigen cv-installatie), kippenren en volop ruimte voor zelfvoorzienend tuinieren.
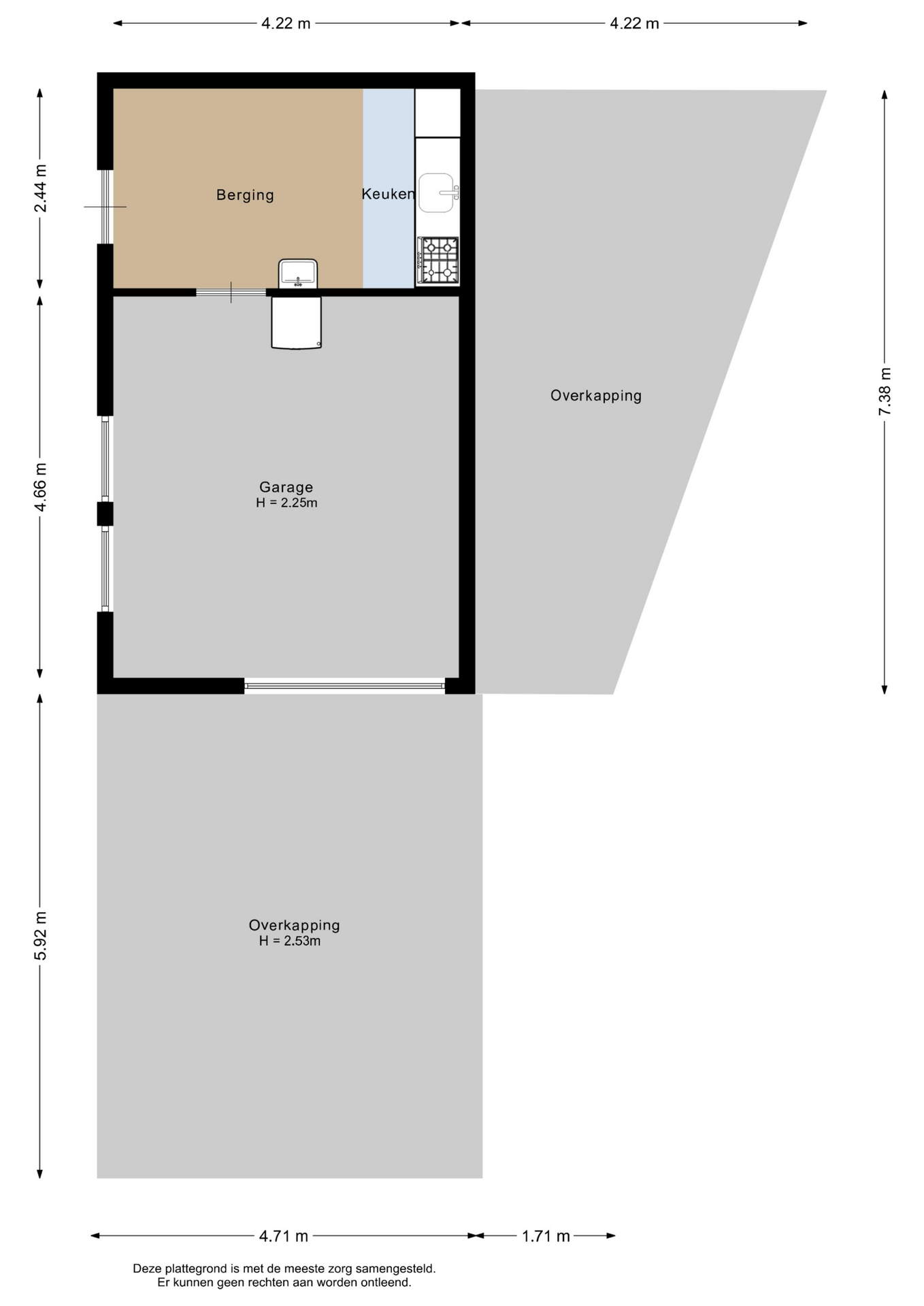
– Garage (ca. 4,66m x 4,22m, hoogte 2,25m) met elektrische poort, aangesloten op water en elektra.
– Carport (ca. 5,92m x 4,71m, hoogte 2,5m) voor meerdere auto’s.
– Overdekte bergruimte met pantry, wateraansluiting en 250-liter opslagtank aangesloten op sproeisysteem.
Bijzonderheden
– Bouwjaar ca. 1974, gerenoveerd 2002, woonoppervlakte ca. 205m², inhoud ca. 650m³.
– Voorzien van 32 zonnepanelen.
– Sauna (Fins en infrarood) + zwembad met volledige technische installatie.
– Badkamer vernieuwd in 2004.
– Krachtstroom aanwezig, vrijstaande garage.
– Gelegen op unieke en rustige locatie met optimale privacy.
Deze semi-bungalow biedt méér dan een woning: het is een levensstijl. Rustig wonen met volop privacy, een zwembad in eigen tuin, een serre voor het hele jaar door genieten en alle ruimte om uw hobby’s uit te oefenen. Kortom: een uniek object dat niet vaak op de markt komt!
Overdracht
Bouwvorm
Indeling
Energie
Buitenruimte
Bergruimte

Op zoek naar een partner in vastgoed?
Maak kennis met VeTeBe
Wat je vraag ook is, VeTeBe staat voor je klaar.
"*" geeft vereiste velden aan































































