
Broekhuizerweg 19a
Overzicht
Ervaar het ultieme woongenot in deze unieke twee-onder-een-kapwoning gelegen in Lottum. Dit is de kans om te wonen in een huis vol karakter, van een open keuken, naar een zeer ruime garage met eigen oprit. En het huis is geheel onderkelderd. De hal met meterkast welke vernieuwd is in 2023 geeft toegang tot de eerste…
Kenmerken
Foto's
Omschrijving
Ervaar het ultieme woongenot in deze unieke twee-onder-een-kapwoning gelegen in Lottum. Dit is de kans om te wonen in een huis vol karakter, van een open keuken, naar een zeer ruime garage met eigen oprit. En het huis is geheel onderkelderd.
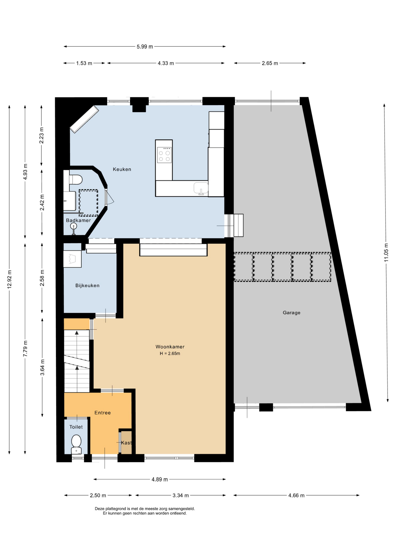
De hal met meterkast welke vernieuwd is in 2023 geeft toegang tot de eerste verdieping, toilet met fonteintje, bijkeuken en woonkamer. De kelder is via de woonkamer bereikbaar maar ook via de achtertuin wat ideaal is om hier bijvoorbeeld een hobby ruimte of bar te maken. Met in totaal 4 ruimtes heb je ruime keuze om je dromen te realiseren.
Bij binnenkomst van de woonkamer met tegelvloer en airco valt direct de open indeling van de begane grond op. De keuken ligt iets hoger waardoor je het idee hebt dat de keuken apart ligt van de woonkamer. De vernieuwde open keuken heeft een bar waar je heerlijk kan genieten van lekkere maaltijden en gezellige avonden. De mat zwarte keuken met koperen wasbak heeft een inductie kookplaat met ingebouwde afzuiging, koelkast, vriezer, vaatwasser en combi oven. Alle apparatuur is van het merk AEG. In de keuken kan een kachel geplaatst worden door de aansluiting welke er nog zit. Bij de keuken ligt een 2e badkamer met inloopdouche, toilet, verwarming en wastafel en meubel. Door het bovenlicht komt hier voldoende licht binnen. Om de hoek van de keuken en de woonkamer ligt de bijkeuken. Welke ideaal is door de inbouwkasten en het witgoed aansluiting.
Via de keuken loop je naar de ruime garage met elektrische poort. Ook kan je via de garage naar de achtertuin. De tuin welke op het westen ligt ligt heerlijk rustig gelegen omdat er geen achterburen zijn en je vrij uitzicht hebt op een parkje. De vlonder en het kippenhok geven een unieke sfeer in de achtertuin.
De eerste verdieping bestaat uit drie aantrekkelijke slaapkamers met laminaat vloer, wat dit huis bijzonder geschikt maakt voor gezinnen. De behaaglijke badkamer is van alle gemakken voorzien, waaronder een bad-douche combinatie, dubbele wastafel met meubel, toilet. Ook is er een infrarood verwarmingssysteem geïnstalleerd voor extra warmte comfort.
De zolder is te bereiken via een vaste trap en ideaal voor een 4e slaapkamer, hobbykamer of logeerkamer. Door de schotten is er voldoende opberg mogelijkheid. De Vaillant Cv ketel staat achter een wandje waar ook nog opbergmogelijkheden zijn.
De woning beschikt over een eigen garage, ideaal voor auto’s of als extra opslagruimte. Met parkeerfaciliteiten op eigen terrein hoef je je geen zorgen te maken over het vinden van een parkeerplek.
Is het tijd om je nieuwe leven in Lottum te beginnen, waar je zult genieten van comfort en ruimte? Neem vandaag nog contact op om een bezichtiging in te plannen.
Bijzonderheden:
• 9 zonnepanelen
• De begane grond heeft dubbel glas en de eerste verdieping enkel glas
• Houten kozijnen
• Vloer en dak isolatie
Verbouwingen:
• Schilderwerk buiten 2019
• Tuin 2020
• Schuttingen in de achtertuin 2019
• Keuken
• Badkamer op de eerste verdieping 2023
• Meterkast 2023
Overdracht
Bouwvorm
Indeling
Energie
Buitenruimte
Bergruimte
Video's

Op zoek naar een partner in vastgoed?
Maak kennis met VeTeBe
Wat je vraag ook is, VeTeBe staat voor je klaar.
"*" geeft vereiste velden aan









































