
Carneool 46
Overzicht
Hoekwoning met omheinde achtertuin met garage, dakterras en volop ruimte! Deze fijne hoekwoning combineert veel ruimte en een fijne natuurlijke lichtinval met veel praktische extra’s. Met 3 slaapkamers en een ruime 2de verdieping biedt deze woning volop mogelijkheden voor bijvoorbeeld een werkruimte of hobbykamer. Het aangrenzende dakterras maakt de 2de verdieping extra bijzonder en zorgt…
Kenmerken
Foto's
Omschrijving
Hoekwoning met omheinde achtertuin met garage, dakterras en volop ruimte!
Deze fijne hoekwoning combineert veel ruimte en een fijne natuurlijke lichtinval met veel praktische extra’s. Met 3 slaapkamers en een ruime 2de verdieping biedt deze woning volop mogelijkheden voor bijvoorbeeld een werkruimte of hobbykamer. Het aangrenzende dakterras maakt de 2de verdieping extra bijzonder en zorgt voor een heerlijke plek om buiten te genieten.
De woonkamer met open keuken zorgt voor een fijne open leefruimte waar koken en wonen naadloos samenkomen. Buiten geniet je van een geheel omheinde achtertuin met overkapping en vrije achterom. De garage is ruim en biedt toegang tot de eigen oprit waar plek is voor 1 auto.
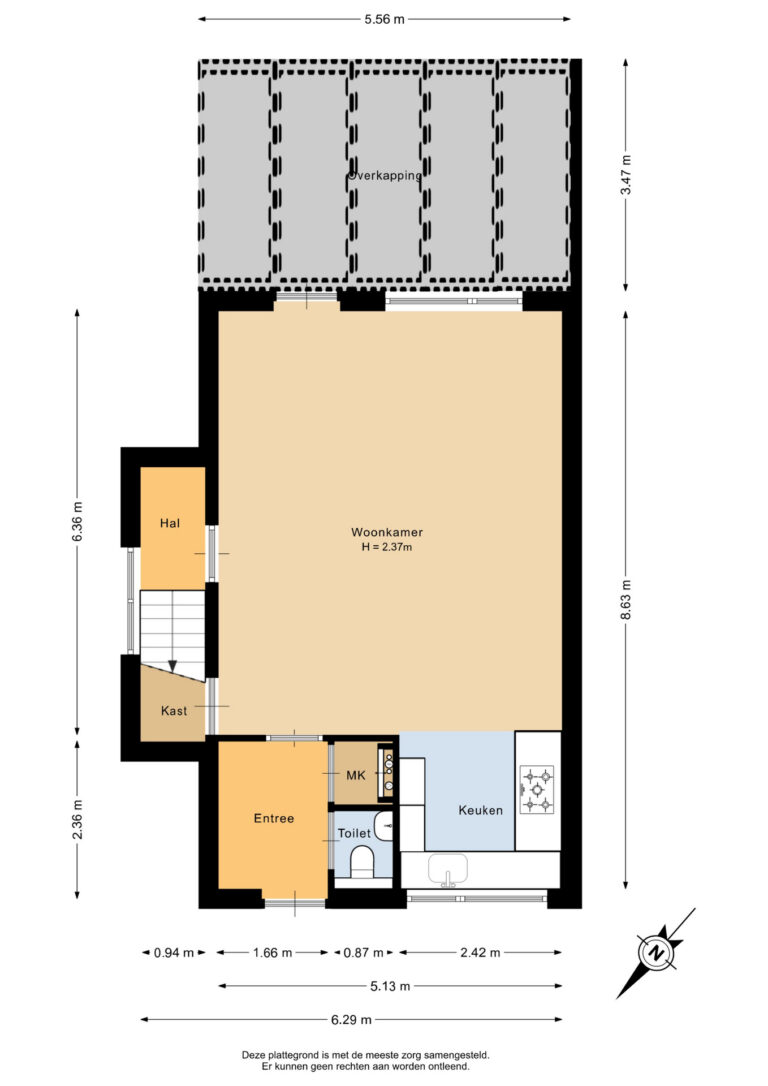
Begane grond
Over de gehele begane grond ligt een doorlopende laminaatvloer. In de hal is de meterkast aanwezig. Het toilet is voorzien van een fonteintje.
De woonkamer met open keuken is voorzien van een trapkast voor extra bergruimte. In de U-keuken zijn een 5-pits gas kookplaat, afzuigkap, oven, vaatwasser en koelkast aanwezig. De loopdeur biedt toegang tot de achtertuin.
1ste verdieping
Over de gehele 1ste verdieping ligt een doorlopende laminaatvloer. Op de overloop is airco aanwezig.
De 3 slaapkamers zijn ruim en hebben een fijne lichtinval. De badkamer is uitgerust met een Whirlpool ligbad, douche, dubbel wastafelmeubel en toilet. Het raam zorgt voor daglicht.
In de bergkast is de cv-ketel aanwezig.
2de verdieping
De vaste trap biedt toegang tot de 2de verdieping. Het is een grote en hoge ruimte die momenteel is ingericht als kantoor. Er is veel lichtinval door de vele ramen. De bergkast is voorzien van de witgoedaansluiting.
Een loopdeur biedt toegang tot het ruime, U-vormige dakterras. Vanuit hier is er een weids uitzicht.
Tuin
De achtertuin is volledig omheind en zeer net aangelegd. Aan de woning is een ruime overkapping (afsluitbaar met zeilen) aanwezig. Achter de houten schutting is ledverlichting aanwezig.
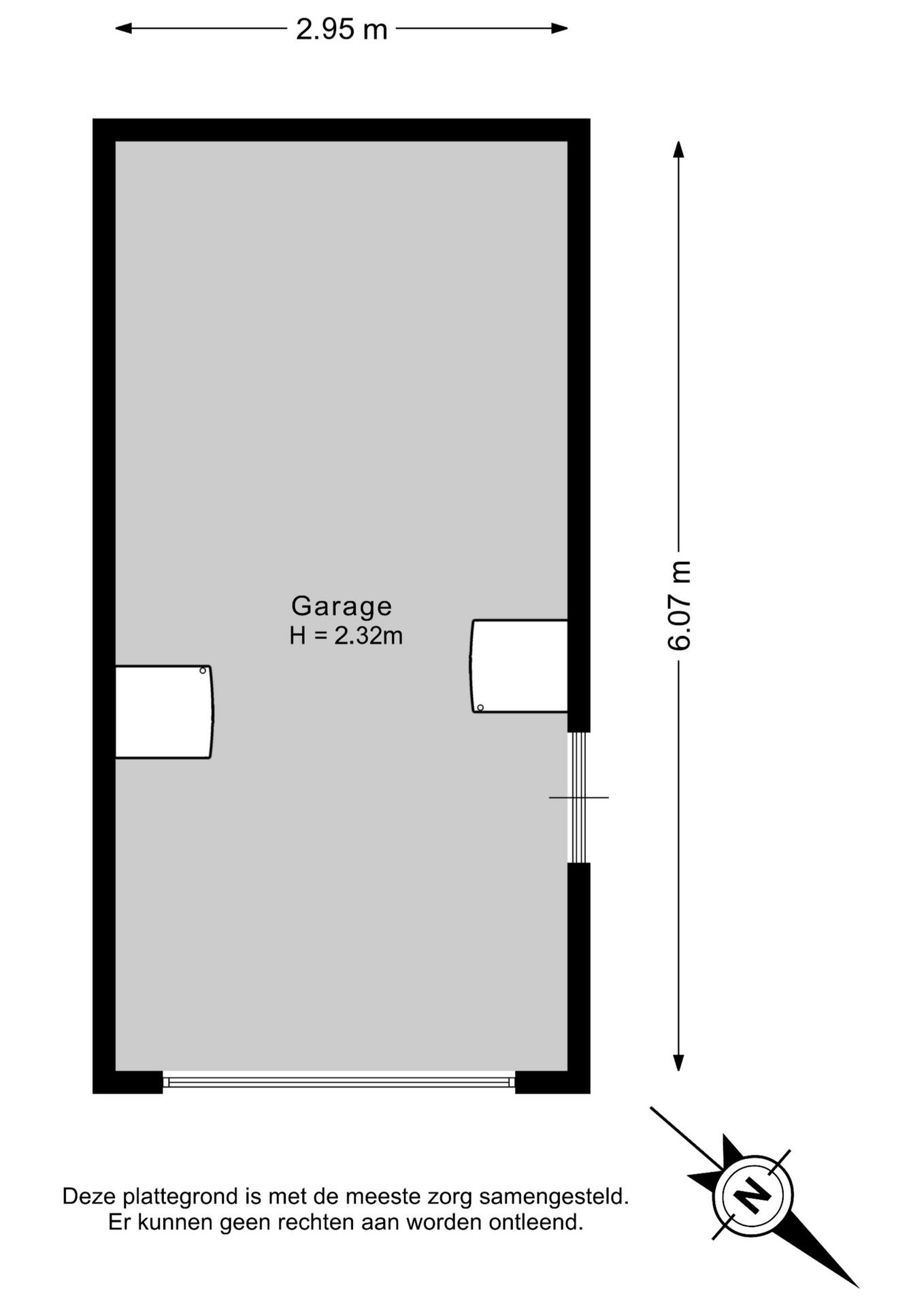
Links achter bevindt zich de vrije achterom met toegang tot de oprit waar plek is voor 1 auto. In de garage is elektra aanwezig. Aan de zijkant van de woning bevindt zich een kleine overkapping die ideaal is voor bijvoorbeeld het stallen van tuingereedschap. In de tuin is een sproeisysteem aanwezig.
Bijzonderheden
– De meterkast is in 2022 geheel vernieuwd en het toilet in 2025.
– 16 zonnepanelen en airco op de overloop van de 1ste verdieping.
– Overal zijn rolluiken aanwezig, deels elektrisch.
– De laadpaal (garage) is ter overname.
– Het energielabel B is afgegeven in 2020, voor het plaatsen van de 16 zonnepanelen.
Overdracht
Bouwvorm
Indeling
Energie
Buitenruimte
Bergruimte
Video's

Op zoek naar een partner in vastgoed?
Maak kennis met VeTeBe
Wat je vraag ook is, VeTeBe staat voor je klaar.
"*" geeft vereiste velden aan




































