
Flamingostraat 30
Overzicht
Tussenwoning met 3 slaapkamers, een grote overkapping en volop mogelijkheden! Deze verzorgde tussenwoning biedt verrassend veel ruimte met onder andere 3 slaapkamers en een ruime bergzolder. De lichte doorzonwoonkamer met open keuken zorgt voor een prettige, open leefruimte met veel daglicht. In de omheinde achtertuin geniet je van optimale privacy. De grote overkapping maakt het…
Kenmerken
Foto's
Omschrijving
Tussenwoning met 3 slaapkamers, een grote overkapping en volop mogelijkheden!
Deze verzorgde tussenwoning biedt verrassend veel ruimte met onder andere 3 slaapkamers en een ruime bergzolder. De lichte doorzonwoonkamer met open keuken zorgt voor een prettige, open leefruimte met veel daglicht. In de omheinde achtertuin geniet je van optimale privacy. De grote overkapping maakt het mogelijk om vrijwel het hele jaar door buiten te zitten, terwijl de berging en vrije achterom zorgen voor extra gemak.
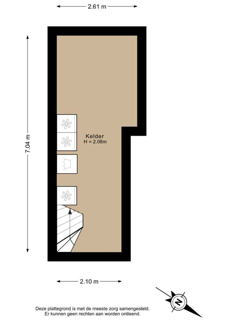
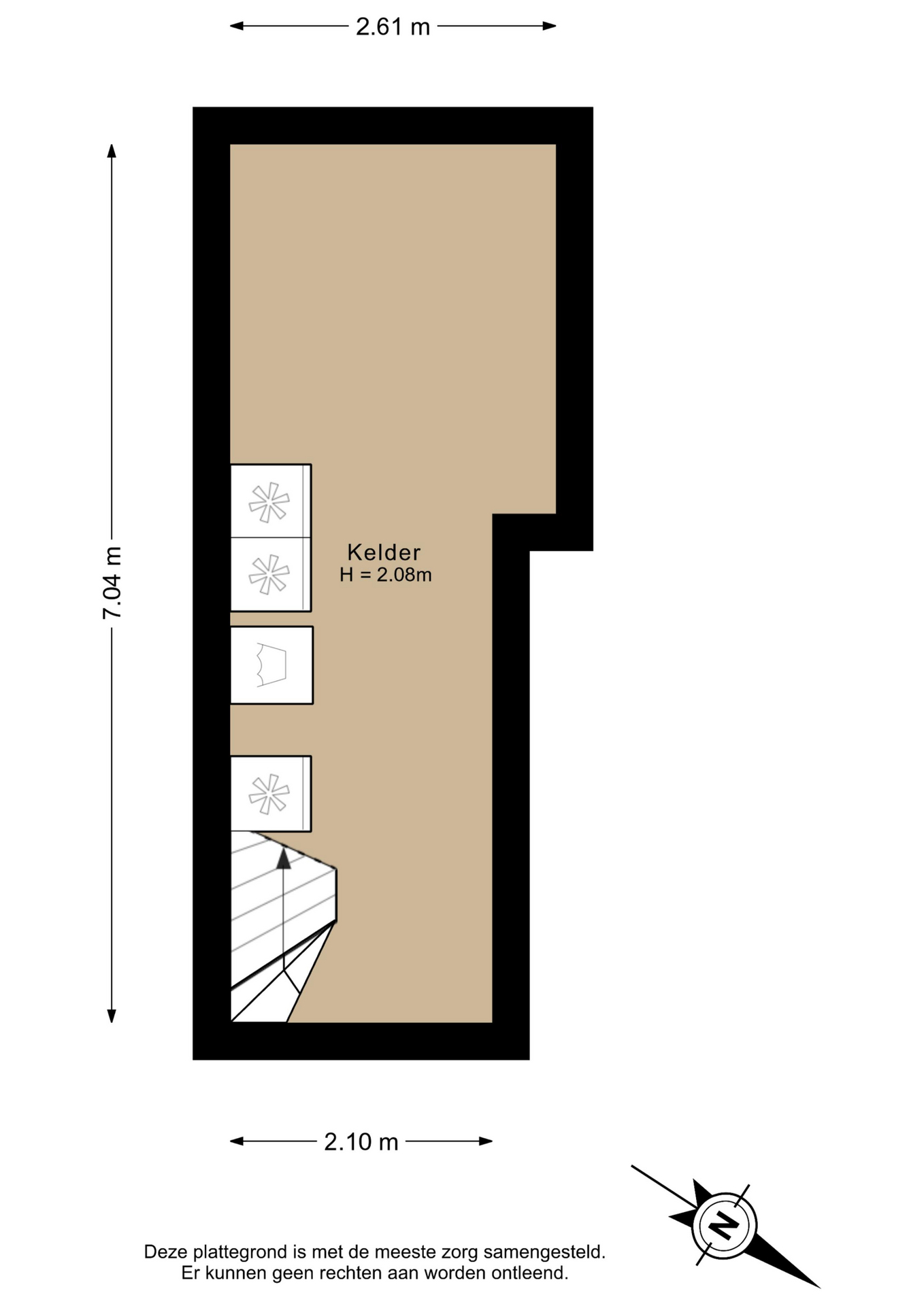
Kelder
Grote provisiekelder met witgoedaansluitingen en toegang tot de kruipruimte. Bovenin het trappengat is de meterkast aanwezig.
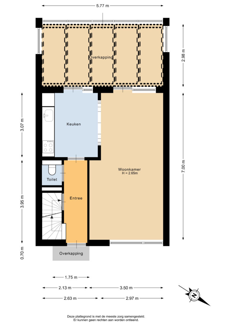
Begane grond
De hal is voorzien van een tegelvloer. Het toilet heeft mechanische ventilatie.
Vanuit de hal biedt de loopdeur toegang tot de open keuken met woonkamer. De ruimte is deels voorzien van een laminaatvloer en deels van een tegelvloer. In de woonkamer is een fijne natuurlijke lichtinval.
De open keuken is uitgerust met een inductiekookplaat (2022), afzuigkap, oven en koelkast. Er hangt een designradiator en een airco. 2 loopdeuren bieden toegang tot de overkapping in de achtertuin.
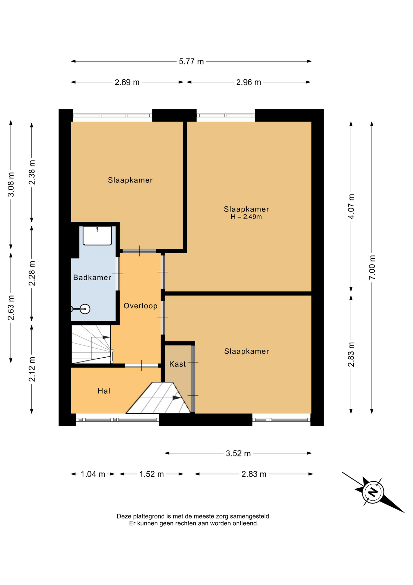
1ste verdieping
De overloop is voorzien van vloerbedekking. Vanuit hier zijn de 3 slaapkamers en de badkamer bereikbaar.
Alle slaapkamers hebben een fijne lichtinval. 2 zijn voorzien van een laminaatvloer en 1 is er voorzien van vloerbedekking. Op de hoofdslaapkamer is airco aanwezig en een andere slaapkamer heeft een vaste kast met een schuifdeur. Alle slaapkamers zijn voorzien van horren en elektrische rolluiken.
In de badkamer zijn een inloopdouche, wastafelmeubel, designradiator en mechanische ventilatie aanwezig.
Ruime bergzolder
De 2de verdieping is een ruime zolderkamer met een klein dakraam, vloerbedekking en veel bergruimte. In de aparte berging is de cv-ketel aanwezig.
Tuin
De omheinde achtertuin is net aangelegd met keramische tegels en gras. De overkapping is volledig af te sluiten door middel van zeilen. Achterin bevindt zich de stenen schuur met overkapping en elektra. Onder deze kleine overkapping is de vrije achterom aanwezig.
Bijzonderheden
– Airco in de woonkamer en hoofdslaapkamer.
– De rolluiken zijn elektrisch.
– Kunststof kozijnen met dubbel glas. De voordeur en achterdeuren hebben houten kozijnen.
– In 2021 zijn de radiatoren in de hal, slaapkamers en badkamer voorzien van thermostaatknoppen.
– In 2022 is de meterkast aangepast en de inductiekookplaat geplaatst.
Overdracht
Bouwvorm
Indeling
Energie
Buitenruimte
Bergruimte
Video's

Op zoek naar een partner in vastgoed?
Maak kennis met VeTeBe
Wat je vraag ook is, VeTeBe staat voor je klaar.
"*" geeft vereiste velden aan





























