
Hamelstraat 10
Overzicht
TE HUUR! –> BESCHIKBAAR PER 1 MAART 2025! INSCHRIJVEN IS VERPLICHT! “Anno 1870” – Wonen bij de oude Chocoladefabriek Dit appartement is gelegen tegen het levendige stadshart van Venlo in de buurt van rustige wandelgebieden, sportaccommodaties en culturele instellingen. Het betreft een instapklaar appartement voorzien van een mooie keuken, hangend toilet (eerste en tweede…
Kenmerken
Foto's
Omschrijving
TE HUUR! –> BESCHIKBAAR PER 1 MAART 2025!
INSCHRIJVEN IS VERPLICHT!
“Anno 1870” – Wonen bij de oude Chocoladefabriek
Dit appartement is gelegen tegen het levendige stadshart van Venlo in de buurt van rustige wandelgebieden, sportaccommodaties en culturele instellingen.
Het betreft een instapklaar appartement voorzien van een mooie keuken, hangend toilet (eerste en tweede verdieping) en badkamer. Het gehele appartement is voorzien van een mooie PVC vloer met houtlook. Het appartement is duurzaam gebouwd en beschikt over enkele zonnepanelen.
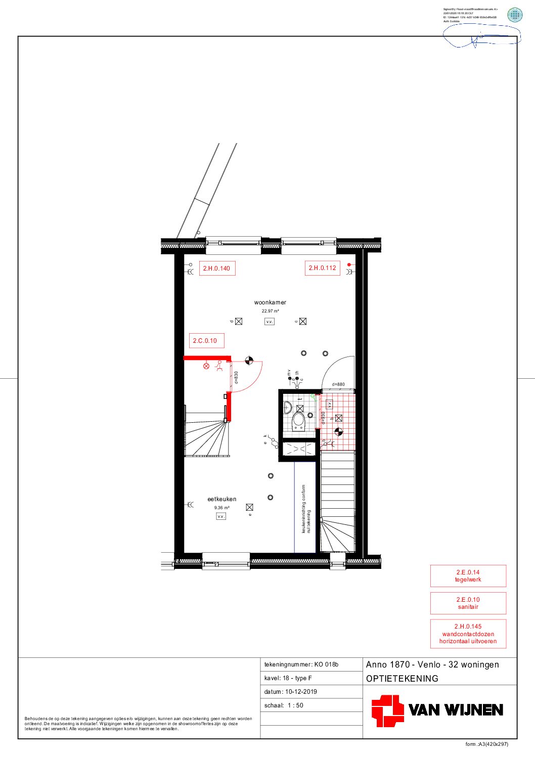
Indeling:
Begane grond:
Eigen entree met meterkast en opgang naar de verdieping.
Eerste verdieping:
Hal met half betegelde toilet met fonteintje. Toegang tot de gezellige woonkamer (ca. 23 m²). Door de grote raampartijen biedt de woonkamer veel lichtinval. Middels de woonkamer bereikt u de open keuken. De keuken is compleet ingericht met een elektrisch fornuis, afzuigkap, koelkast, combi oven en vaatwasser. Trapkast/voorraadkast.
Tweede verdieping:
Vanuit de keuken bereikt u de 2e verdieping. Overloop met toegang tot de slaapkamer (ca. 13 m²). Luxe afgewerkte badkamer voorzien van een wastafelmeubel met dubbele wastafel, 2e toilet, designradiator en douche. CV ruimte met witgoedaansluiting. Daarnaast is vanuit de overloop het royale dakterras bereikbaar waar het heerlijk vertoeven is!
Overig:
Middels een paadje aan de rechterzijde is de achtergelegen eigen buitenberging (ca. 6 m²) bereikbaar. De berging is voorzien van een lichtpunt en elektra.
Huurprijs: € 995,00 per maand, excl. energie- en internetkosten
Voorschot servicekosten: € 60,00 per maand.
Interesse of meer informatie? Mail dan naar verhuur@vetebe.nl.
Om in aanmerking te komen voor deze woning, dient u rekening te houden met enkele voorwaarden en aan te leveren documenten:
Voorwaarden:
– Als inkomenseis hanteert verhuurder de norm dat uw bruto maandinkomen (inclusief vakantiegeld) minimaal gelijk
dient te zijn aan 3 maal de maandhuur (bespreekbaar)
– Uw arbeidsovereenkomst moet minimaal een jaarcontract zijn
– Huisdieren niet toegestaan;
– Huurovereenkomst wordt gesloten na goedkeuring van de eigenaar;
– Huurovereenkomst van minimaal 2 jaar, daarna onbepaalde tijd;
– Energie- en internetkosten zijn voor rekening van huurder;
– 2 Maanden waarborgsom.;
– Een creditcheck maakt deel uit van de selectieprocedure.
Graag ontvangen wij de volgende gegevens:
U bent werknemer in vaste dienst:
– kopie paspoort/ID-kaart;
– verklaring huidige hypotheekverstrekker of verhuurder;
– werkgeversverklaring;
– kopie 3 recente salarisstroken;
– overzicht bankafschrift uitbetalingen salaris/uitkering
U bent zelfstandig ondernemer:
– kopie paspoort/ID-kaart;
– verklaring huidige verhuurder of hypotheekverstrekker;
– kopie balans en winst-/verliesrekening, goedgekeurd door een erkend accountant.
To be eligible for this property, you must take into account a number of conditions and documents to be supplied:
Conditions:
– Pets not allowed;
– Rental agreement is concluded after approval of the owner;
– Employment contract of at least one year;
– Energy and internet costs are for the account of the tenant;
– Minimal rental period is 2 year.
– 2 month deposit;
– A credit check is part of the selection procedure.
We would like to receive the following information:
You are a permanent employee:
– copy of passport/ID card;
– statement current mortgage lender or landlord;
– employer’s declaration;
– copy of 3 recent salary slips;
– copy bankaccount payment salary of 3 months.
You are an independent entrepreneur:
– copy of passport/ID card;
– statement current landlord or mortgage lender;
– copy of balance sheet and profit/loss account, approved by a recognized accountant.
Overdracht
Bouwvorm
Indeling
Energie
Buitenruimte
Bergruimte

Op zoek naar een partner in vastgoed?
Maak kennis met VeTeBe
Wat je vraag ook is, VeTeBe staat voor je klaar.
"*" geeft vereiste velden aan





















