
Harry Meijerstraat 89
Overzicht
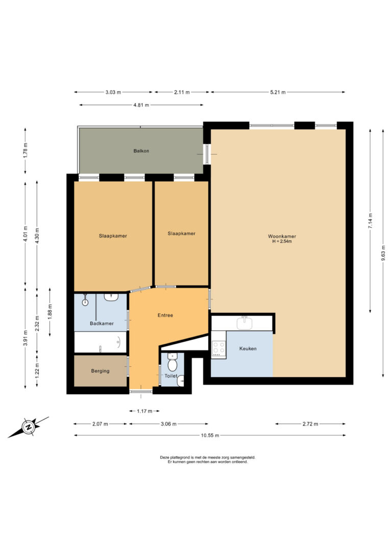
Prachtig 3-kamer appartement op een centrale toplocatie in Venlo-Oost! Gelegen op de 2de verdieping, biedt dit appartement 2 comfortabele slaapkamers en een heerlijk ruime woonkamer met open keuken. Vanuit het balkon en woonkamer is er een prachtig uitzicht over de vijver. De praktische indeling van dit appartement biedt een scala aan mogelijkheden. Dit appartement biedt…
Kenmerken
Foto's
Omschrijving
Prachtig 3-kamer appartement op een centrale toplocatie in Venlo-Oost!
Gelegen op de 2de verdieping, biedt dit appartement 2 comfortabele slaapkamers en een heerlijk ruime woonkamer met open keuken. Vanuit het balkon en woonkamer is er een prachtig uitzicht over de vijver. De praktische indeling van dit appartement biedt een scala aan mogelijkheden.
Dit appartement biedt niet alleen een comfortabele woonomgeving, maar ook zeer veel mogelijkheden voor iedere levensfase.
Berging en begane grond
Een eigen fietsenberging (ca. 4m²) in de kelder, gemakkelijk toegankelijk via het trappenhuis, de hellingbaan of de lift, zorgt voor fijne opslagruimte. Bij binnenkomst via de hoofdentree vindt u de hal met het beltableau, het trappenhuis en de lift.
2de verdieping
De ruime hal geeft toegang tot alle ruimtes. Het toilet is voorzien van een fonteintje en de volledig betegelde badkamer heeft een wastafel, ligbad en inloopdouche. De praktische berging (ca. 2,5m²) met witgoedaansluiting biedt extra gemak.
De 2 slaapkamers (ca. 13m² en 8,5m²) zijn ruim en comfortabel en bieden uitzicht op de vijver. De woonkamer van ca. 5,21m x 7,14m) is gemakkelijk in te richten. Vanaf het ruime balkon (ca. 8,5m²) is er uitzicht over de vijver. De open keuken is voorzien van een inductiekookplaat en afzuigkap. De woonkamer en keuken hebben samen een oppervlakte van ca. 50m².
Bijzonderheden
– Het appartement is geheel voorzien van een laminaatvloer.
– Eigen berging in de kelder.
– Eigen cv-ketel uit 2024.
– Het appartement heeft een geavanceerde video-doorinstallatie.
– VVE kosten ca. € 236,15 per maand.
Projectnotaris
De notariskeuze is voor verkoper een wezenlijk onderdeel van de overeenkomst en is derhalve aan verkoper voorbehouden. Het betreft een projectnotaris voor de leveringsakte.
Overdracht
Bouwvorm
Indeling
Energie
Buitenruimte
Bergruimte
Video's

Op zoek naar een partner in vastgoed?
Maak kennis met VeTeBe
Wat je vraag ook is, VeTeBe staat voor je klaar.
"*" geeft vereiste velden aan






























