
Hertog Reinoudsingel 131
Overzicht
Stijlvol wonen op een toplocatie in Venlo! Aan de karakteristieke Hertog Reinoudsingel bevindt zich dit prachtige herenhuis, dat in 2023 volledig is gerenoveerd en tot in de puntjes is afgewerkt. In de gehele woning komen design en functionaliteit naadloos samen. De hoogwaardige materialen, strakke afwerking en maatwerk inbouwkasten zorgen voor een luxe uitstraling en een…
Kenmerken
Foto's
Omschrijving
Stijlvol wonen op een toplocatie in Venlo!
Aan de karakteristieke Hertog Reinoudsingel bevindt zich dit prachtige herenhuis, dat in 2023 volledig is gerenoveerd en tot in de puntjes is afgewerkt. In de gehele woning komen design en functionaliteit naadloos samen. De hoogwaardige materialen, strakke afwerking en maatwerk inbouwkasten zorgen voor een luxe uitstraling en een optimaal gebruik van iedere ruimte.
Met maar liefst 4 slaapkamers, 2 badkamers en een aparte inloopkast biedt deze woning volop ruimte en comfort voor het hele gezin. Daarnaast beschikt het huis over een praktische bijkeuken, een aparte wasruimte op de 1ste verdieping, een ruim souterrain en een vliering, ideaal voor extra opslag.
De lichte woonkamer en de moderne, open keuken vormen het hart van de woning. Buiten geniet je van een diepe, volledig omheinde achtertuin waar privacy en rust centraal staan. Hierdoor geniet je van een heerlijke plek om te ontspannen en te genieten van het buitenleven.
Souterrain
Het souterrain is groot en biedt veel bergruimte. Hier zijn de meterkast en witgoedaansluiting aanwezig. Vanuit het souterrain is tevens de kruipruimte toegankelijk.
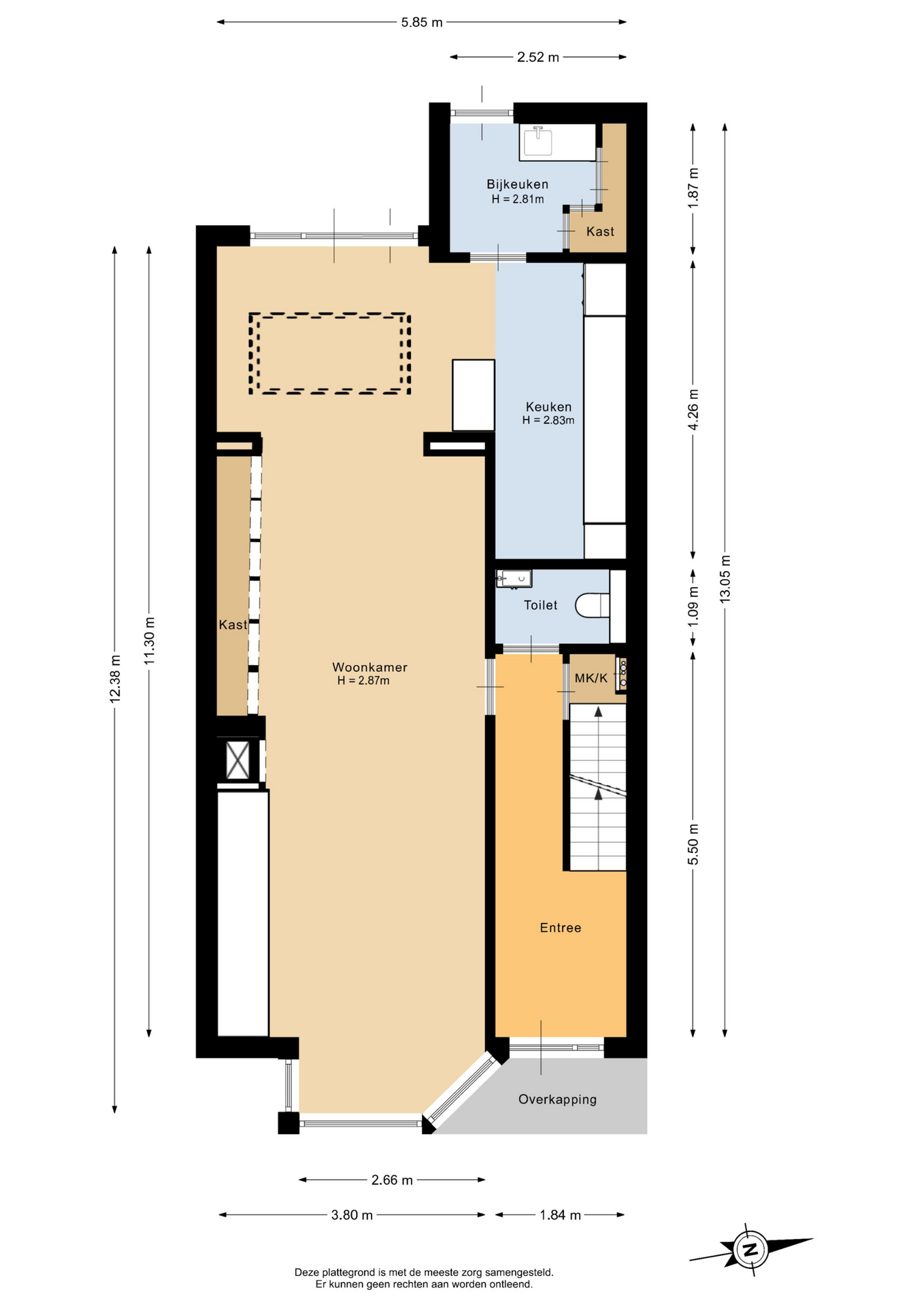
Begane grond
In de hal is het toilet met fonteintje aanwezig. Tevens is vanuit de hal het souterrain bereikbaar.
De ruime woonkamer heeft een mooie, natuurlijke lichtinval. Het grote dakraam met elektrisch plisségordijn draagt hieraan bij. Aan de achterzijde biedt de loopdeur directe toegang tot de tuin. Tevens bevindt zich achterin de mooie open keuken met Dekton-aanrechtblad. Je geniet hier onder andere van een Quooker met kokend én bruisend water, een wijnkoelkast, een inductiekookplaat met geïntegreerde afzuiging, een grote koelkast en een oven.
De bijkeuken biedt veel extra bergruimte en heeft een loopdeur richting de achtertuin.
1ste verdieping
Over de gehele 1e verdieping ligt een doorlopende pvc-vloer. Beide slaapkamers zijn voorzien van airco. Eén van de kamers wordt momenteel gebruikt als thuiswerkplek. In de aparte wasruimte is een 2de witgoedaansluiting aanwezig.
De ruime badkamer heeft elektrische vloerverwarming. Er zijn een ligbad, inloopdouche, dubbel wastafelmeubel, toilet, designradiator en mechanische ventilatie aanwezig. De loopdeur biedt toegang tot het dakterras (voorzien van zonnepanelen).
2de verdieping
De vaste trap biedt toegang tot de 2de verdieping. Ook op deze verdieping ligt een doorlopende pvc-vloer. Er zijn 2 slaapkamers en een inloopkast aanwezig.
In de 2de badkamer ligt eveneens elektrische vloerverwarming. Daarnaast is de badkamer voorzien van een inloopdouche, wastafelmeubel, toilet en mechanische ventilatie.
Vliering
De vliering is bereikbaar door middel van de vlizotrap. Hier is de cv-ketel uit 2023 aanwezig.
Tuin
De achtertuin is diep en geheel omheind. Je geniet hier van optimale privacy. Er zijn een betegeld terras en kunstgras aanwezig. Door de gehele tuin bevinden zich stroompunten.
Bijzonderheden
– De keuken is in 2021 geplaatst; de gehele woning is in 2023 verbouwd.
– 15 zonnepanelen.
– Elektrische vloerverwarming in beide badkamers.
– Alarminstallatie.
– Airco op beide slaapkamers op de 1ste verdieping en op de overloop van de 2de verdieping.
– In de gehele woning zijn inbouwkasten aanwezig.
– Overal zijn vaste horren aanwezig.
– Spouwmuur (begane grond), vloer- en dak isolatie zijn in de afgelopen 5 jaar uitgevoerd.
– In 2024/2025 zijn de buitenkozijnen voor het laatst geschilderd. Op de 2de verdieping is één slaapkamer met aluminium kozijnen aanwezig.
– Parkeren gebeurt door middel van een jaarlijkse parkeerontheffing voor de blauwe zone. Deze is aan te vragen bij de gemeente Venlo.
Overdracht
Bouwvorm
Indeling
Energie
Buitenruimte
Bergruimte
Video's

Op zoek naar een partner in vastgoed?
Maak kennis met VeTeBe
Wat je vraag ook is, VeTeBe staat voor je klaar.
"*" geeft vereiste velden aan


























































