
Karbindersstraat 37
Overzicht
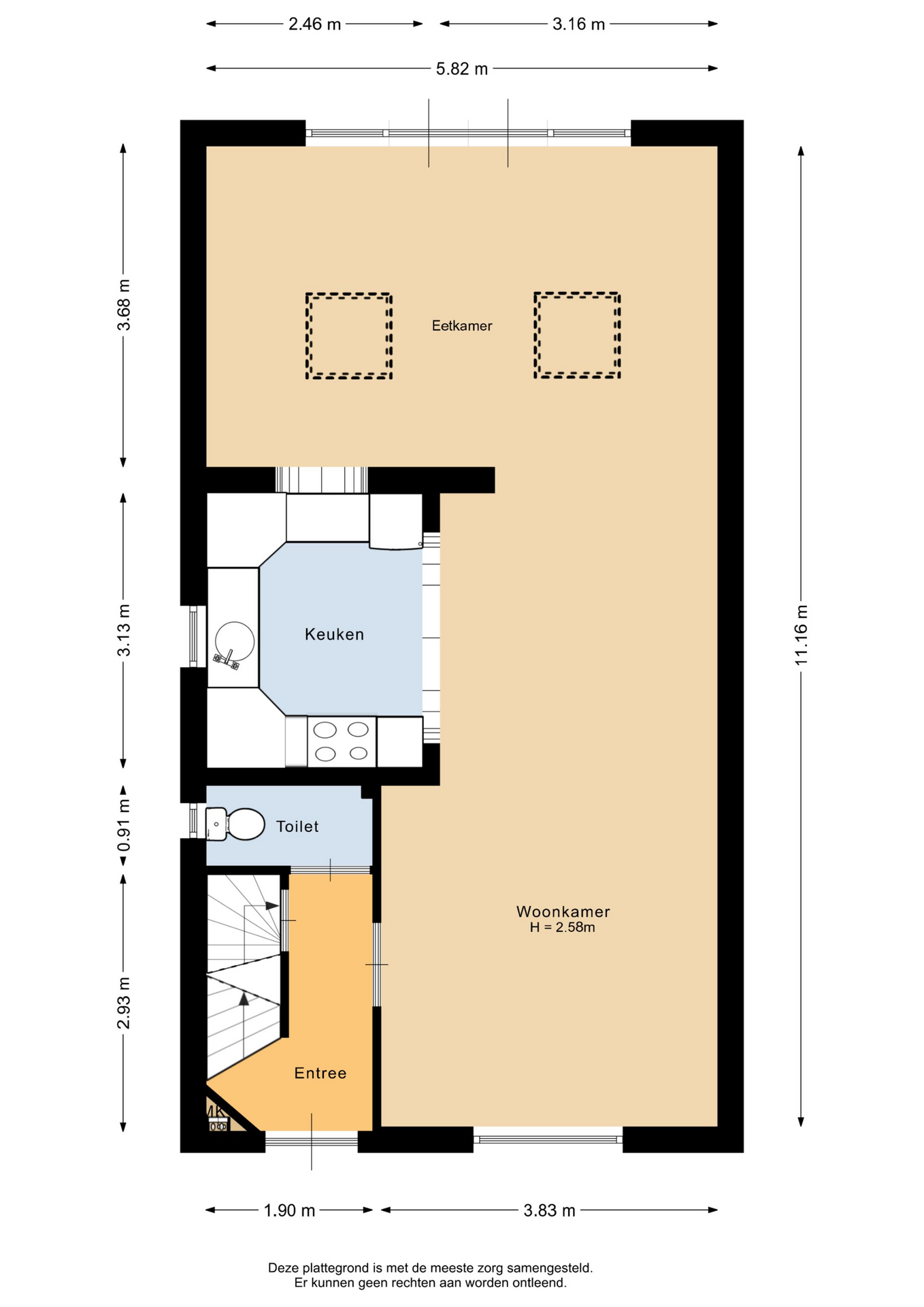
Ruime, uitgebouwde hoekwoning met royale woonkamer, moderne open keuken en diepe tuin! Deze ruime hoekwoning is aan de achterzijde uitgebouwd en biedt daardoor een comfortabele leefruimte met een heerlijke L-vormige woonkamer en open keuken. De aanbouw is voorzien van vloerverwarming. Verder beschikt de woning over drie slaapkamers en een ruimte badkamer. De diepe achtertuin met…
Kenmerken
Foto's
Omschrijving
Ruime, uitgebouwde hoekwoning met royale woonkamer, moderne open keuken en diepe tuin!
Deze ruime hoekwoning is aan de achterzijde uitgebouwd en biedt daardoor een comfortabele leefruimte met een heerlijke L-vormige woonkamer en open keuken. De aanbouw is voorzien van vloerverwarming.
Verder beschikt de woning over drie slaapkamers en een ruimte badkamer. De diepe achtertuin met vrije achterom biedt volop privacy en mogelijkheden om buiten te genieten.
In deze ruime hoekwoning gaan comfort en praktisch wonen hand in hand!
Kelder
Provisiekelder bereikbaar vanuit de hal.
Begane grond
In de hal is het toilet aanwezig. Vanuit de hal is ook de kelder toegankelijk. De gehele begane grond is voorzien van een tegelvloer. In de aanbouw is vloerverwarming aanwezig.
De royale L-vormige woonkamer heeft veel lichtinval en biedt meer dan voldoende ruimte. De halfopen keuken is uitgerust met een 6-pits gasfornuis en oven van SMEG.
Eerste verdieping
Op deze verdieping bevinden zich drie slaapkamers, allen voorzien van een laminaatvloer. Eén van de slaapkamers beschikt over een praktische muurkast en een elektrische radiator.
Verder zijn er een aparte wasruimte met witgoedaansluitingen en een geheel betegelde badkamer met wastafelmeubel, douche en raam aanwezig.
Tweede verdieping
De zolderverdieping is een volwaardige, ruime kamer met een dakkapel. Hier zijn een klein dakraam (enkel glas) en de cv-ketel aanwezig.
Tuin
De achtertuin is volledig betegeld en beschikt over een vrije achterom aan de zijkant.
Bijzonderheden
– 11 zonnepanelen.
– HR+ glas op begane grond en eerste verdieping (2020).
– De aanbouw is voorzien van vloerverwarming.
– Let op: de vaatwasser is defect en wordt verwijderd, evenals de koelkast.
Overdracht
Bouwvorm
Indeling
Energie
Buitenruimte
Bergruimte

Op zoek naar een partner in vastgoed?
Maak kennis met VeTeBe
Wat je vraag ook is, VeTeBe staat voor je klaar.
"*" geeft vereiste velden aan

























