
Kenzenstraat 13
Overzicht
In de sfeervolle oude dorpskern van Steyl, verscholen in het geliefde kloosterdorp, ligt deze verrassend ruime en uitstekend onderhouden karakteristieke woning. Gelegen in een gewilde straat, met basisschool, supermarkt en huisarts op loopafstand én met snelle verbindingen naar de belangrijkste uitvalswegen, woon je hier heerlijk rustig met alle voorzieningen binnen handbereik. Bij binnenkomst word je…
Kenmerken
Foto's
Omschrijving
In de sfeervolle oude dorpskern van Steyl, verscholen in het geliefde kloosterdorp, ligt deze verrassend ruime en uitstekend onderhouden karakteristieke woning. Gelegen in een gewilde straat, met basisschool, supermarkt en huisarts op loopafstand én met snelle verbindingen naar de belangrijkste uitvalswegen, woon je hier heerlijk rustig met alle voorzieningen binnen handbereik.
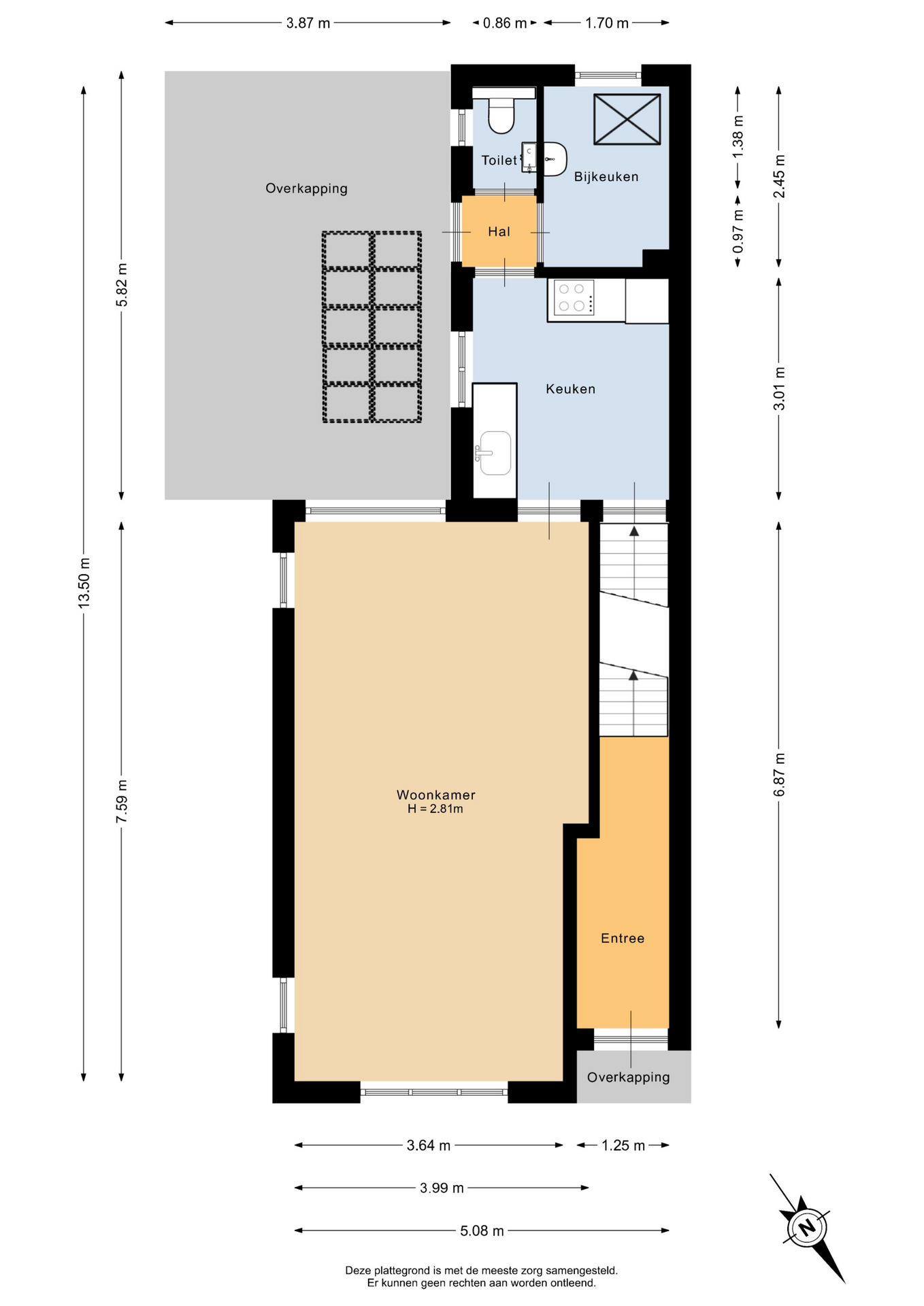
Bij binnenkomst word je direct verwelkomd door een lichte hal met authentieke tegelvloer – een knipoog naar het karakter van de woning. De royale doorzonwoonkamer is een echte blikvanger: grote raampartijen zorgen voor een prachtige lichtinval, terwijl de houten vloer en sierlijke plafondornamenten de warme jaren ’30 sfeer benadrukken. Hier voel je je meteen thuis.
De gloednieuwe, dichte keuken is stijlvol afgewerkt en van alle gemakken voorzien, waaronder een inductiekookplaat, afzuigkap, spoelbak en koelkast. Vanuit de keuken bereik je de praktische bijkeuken met witgoedaansluiting, warm- en koudwaterkraan en extra bergruimte op de vliering. Ook vind je hier toegang tot de kelder en de tuin. Op de begane grond is daarnaast een apart toilet met fonteintje aanwezig.
De zonnige achtertuin, gelegen op het zuidwesten, is verzorgd aangelegd en beschikt over een vrije achterom. Onder de fraaie overkapping met lichtstraat geniet je hier tot in de late uurtjes van het buitenleven, een heerlijke plek om te ontspannen of gezellig samen te komen.
Op de eerste verdieping bevinden zich twee fijne slaapkamers met laminaatvloer en een complete, geheel betegelde badkamer met ligbad, douche, wastafelmeubel, hangend toilet en mechanische ventilatie.
Via een vaste trap bereik je de tweede verdieping met nog eens twee slaapkamers. Eén kamer heeft prachtige authentieke houten balken die de charme van de woning extra benadrukken. De andere kamer beschikt over praktische bergruimte achter de knieschotten. Op de extra vliering bevindt zich de HR-107 cv-ketel.
Bijzonderheden:
• Energielabel B
• Volledig voorzien van rolluiken
• Dak- en muurisolatie met dubbel glas
• Vrije achterom
• Perceel van ca. 291 m²
Ben je op zoek naar een karaktervolle, instapklare woning met ruimte, sfeer én een fijne ligging in het prachtige Steyl? Dan is dit jouw kans!
Overdracht
Bouwvorm
Indeling
Energie
Buitenruimte
Bergruimte
Video's

Op zoek naar een partner in vastgoed?
Maak kennis met VeTeBe
Wat je vraag ook is, VeTeBe staat voor je klaar.
"*" geeft vereiste velden aan










































