
Keulseweg 120
Overzicht
Vrijstaande woning met veel ruimte, potentie en een diepe achtertuin met garage en vrije achterom! Ben je op zoek naar een woning met volop mogelijkheden om helemaal naar eigen wens in te richten? Deze grote vrijstaande woning biedt precies dat! Met een lichte woonkamer, aparte eetkamer, bijkeuken, vliering én royale zolder. De grote en diepe…
Kenmerken
Foto's
Omschrijving
Vrijstaande woning met veel ruimte, potentie en een diepe achtertuin met garage en vrije achterom!
Ben je op zoek naar een woning met volop mogelijkheden om helemaal naar eigen wens in te richten? Deze grote vrijstaande woning biedt precies dat! Met een lichte woonkamer, aparte eetkamer, bijkeuken, vliering én royale zolder. De grote en diepe achtertuin met garage en vrije achterom maken het plaatje compleet.
De woning is altijd keurig onderhouden, maar vraagt om modernisering – dé perfecte basis voor de handige klusser.
Kelder
Provisiekelder bereikbaar vanuit de eetkamer. In de kelder is de watermeter aanwezig.
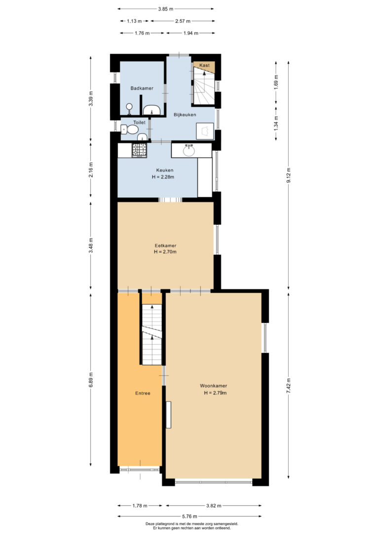
Begane grond
In de hal ligt de originele terrazzovloer. De elektrameterkast is hier te vinden.
De ruime en lichte woonkamer is voorzien van vloerbedekking. De dubbele deur met glas-in-lood biedt toegang tot de eetkamer met zeilvloer. De woonkamer en eetkamer zijn ca. 41m² in totaal. Vanuit de eetkamer is de kelder bereikbaar. De kelderdeur en de gangdeuren zijn ook nog de originele paneeldeuren (eenzijdig bekleed). In de keuken (ca. 8m²) ligt eveneens een zeilvloer. Onder de zeilvloer ligt ook een originele terrazzovloer. Er zijn een koelkast, afzuigkap en witgoedaansluiting aanwezig.
In de bijkeuken is een tweede witgoedaansluiting aanwezig. Hier ligt een tegelvloer en hier bevindt zich de gasmeter. Het toilet is voorzien van een fonteintje met raam en de badkamer (ca. 4m²) heeft een inloopdouche, wastafel en raam. De trapkast is ideaal als bergruimte. De loopdeur biedt toegang tot de achtertuin.
Vanuit de bijkeuken (ca. 5m²) is de grote zolder bereikbaar door middel van een vaste trap. Het is een zeer ruime verdieping (ca. 21m²) met een dakraam en de cv-ketel. Dit gedeelte is voorzien van dakisolatie.
1ste verdieping
De overloop is voorzien van vloerbedekking. Op deze verdieping zijn de originele paneeldeuren nog aanwezig. Via een luik is de vliering bereikbaar. De vlieringvloer is geïsoleerd.
De slaapkamers zijn ca. 7m², 10m² en 14,5m². Twee slaapkamers hebben vloerbedekking en de andere heeft een laminaatvloer. Daarnaast zijn er twee slaapkamers voorzien van een dakkapel.
Vliering
Bergvliering bereikbaar vanaf de overloop van de eerste verdieping.
Tuin
De diep achtertuin is volledig omheind en voorzien van veel groen. Je geniet hier heerlijk rustig van veel privacy. Aan de woning is een handmatig zonnescherm aanwezig. Achterin staat een stenen berging t.b.v. opslag.
De oprit is gedeeld met de buren en biedt vrije toegang tot de garage en achtertuin. De garage (ca. 26m²) is voorzien van elektra, een kantelpoort en een grote vliering (ca. 12,5m²) die bereikbaar is door middel van een vlizotrap.
Bijzonderheden
– Kunststof kozijnen met HR++ glas. De voordeur (enkel figuurglas) en achterdeur hebben een houten kozijn.
Overdracht
Bouwvorm
Indeling
Energie
Buitenruimte
Bergruimte

Op zoek naar een partner in vastgoed?
Maak kennis met VeTeBe
Wat je vraag ook is, VeTeBe staat voor je klaar.
"*" geeft vereiste velden aan














































