
Maaszicht – kavel 13 plan Meuleveld ong
Overzicht
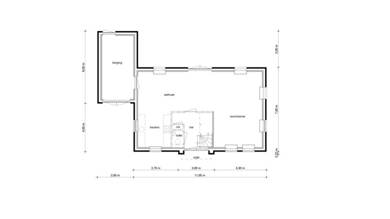
Op de site https://www.brummelhuis.nl/projecten/meulenveld-lomm/woningtypen zijn voorbeelden te bekijken van woningen die op de kavels gebouwd kunnen worden. Op deze fantastische locatie in Lomm ligt dit riante perceel van 649m², waar het nu mogelijk is om jouw absolute droomwoning te realiseren! Het Meulenveld is gelegen op een rustige, landelijke locatie nabij de Maas en natuur- en…
Kenmerken
Foto's
Omschrijving
Op de site https://www.brummelhuis.nl/projecten/meulenveld-lomm/woningtypen zijn voorbeelden te bekijken van woningen die op de kavels gebouwd kunnen worden.
Op deze fantastische locatie in Lomm ligt dit riante perceel van 649m², waar het nu mogelijk is om jouw absolute droomwoning te realiseren! Het Meulenveld is gelegen op een rustige, landelijke locatie nabij de Maas en natuur- en bosgebieden, met alle voorzieningen op fietsafstand.
Wanneer je een kavel koopt, kun je jouw huis laten ontwerpen door een architect. Hierbij kun je tot in het kleinste detail bepalen hoe jouw woning eruit komt te zien. Denk hierbij aan het woningtype, de stijl en indeling. Uiteraard kun je ook de tuin helemaal naar wens inrichten. Zo weet je zeker dat jouw huis ook jouw droomhuis wordt!
Het Meulenveld is een nieuwbouwwijk in het van oudsher agrarisch dorpje Lomm. Eén van de redenen waarom mensen graag in Lomm wonen is de schitterende natuur in de omgeving. Het ligt ca. 7 km ten noorden van Venlo. Aan de westelijke zijde van de wijk ligt de Maas en aan de oostelijke zijde de dorpskern van Lomm met diverse voorzieningen. Uitvalswegen zoals de N271, A67 en A73 richting Eindhoven, Nijmegen en Duitsland zijn makkelijk bereikbaar.
Hou jij van het dorpsleven en woon je graag rustig met veel ruimte en groen? Dan is een woning in Meulenveld misschien wel iets voor jou!
Overdracht
Bouwvorm
Indeling
Buitenruimte
Bergruimte

Op zoek naar een partner in vastgoed?
Maak kennis met VeTeBe
Wat je vraag ook is, VeTeBe staat voor je klaar.
"*" geeft vereiste velden aan



















