
Muntstraat 127
Overzicht
Authentiek wonen met een moderne twist! Supergaaf, sfeervol en tot in de puntjes verzorgd — deze authentieke jaren ’30 woning combineert klassieke charme met eigentijds wooncomfort. Gelegen aan een rustige straat, op loopafstand van het centrum, vind je hier een plek waar stijl, ruimte en sfeer naadloos in elkaar overgaan. Zodra je binnenstapt, voel je…
Kenmerken
Foto's
Omschrijving
Authentiek wonen met een moderne twist!
Supergaaf, sfeervol en tot in de puntjes verzorgd — deze authentieke jaren ’30 woning combineert klassieke charme met eigentijds wooncomfort. Gelegen aan een rustige straat, op loopafstand van het centrum, vind je hier een plek waar stijl, ruimte en sfeer naadloos in elkaar overgaan.
Zodra je binnenstapt, voel je het: dit is een huis met karakter. Originele details zoals glas-in-loodramen, paneeldeuren en een terrazzo vloer worden moeiteloos gecombineerd met een moderne leefkeuken en een uitgebouwde woonkamer. De royale living met sfeervolle gesloten houthaard vormt het kloppend hart van het huis — een plek waar warmte, gezelligheid en design samenkomen.
De leefkeuken met kookeiland is een echte blikvanger. Een stijlvolle combinatie van functionaliteit en flair, met volop werkruimte, moderne apparatuur en een prachtige lichtstraat waardoor de hele ruimte baadt in natuurlijk licht. Hier kook je, borrelt en geniet je met familie en vrienden, elke dag opnieuw.
Ook buiten is het goed toeven. De fraai aangelegde tuin biedt volop privacy, een overdekt zitgedeelte en een vrije achterom. Een heerlijke plek om te ontspannen, te tuinieren of tot rust te komen met een goed glas wijn.
Met vier slaapkamers, een moderne badkamer, veel bergruimte en airconditioning is dit een woning die moeiteloos meegroeit met jouw leven. Alles ademt kwaliteit, comfort en zorg voor detail.
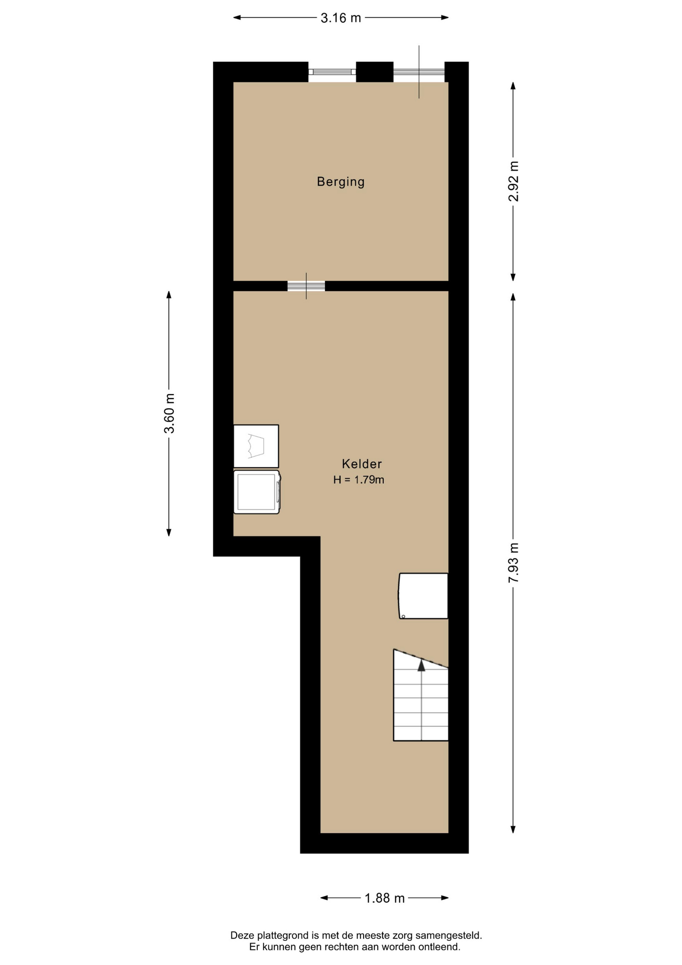
Kelder
De kelder, met een stahoogte van circa 1,80 meter, biedt volop bergruimte en plaats voor de witgoedopstelling. Via een luik is de kruipruimte onder de woonkamer bereikbaar. Een doorgang leidt naar een tweede ruimte met de cv-ketel en een loopdeur naar de tuin, praktisch én functioneel!
Begane grond
Al bij aankomst verraadt de karakteristieke gevel met erker, glas-in-loodramen en overdekte entree dat dit geen doorsnee woning is. Binnenkomend in de hal valt direct de prachtig gerestaureerde originele terrazzovloer op. De stijlvolle trapopgang en authentieke paneeldeuren versterken het jaren ’30 karakter. In de hal bevindt zich tevens het deels betegelde toilet met wandcloset en een fraai in stijl uitgevoerd fonteintje. Vanuit de hal zijn zowel de kelder als de woonkamer bereikbaar.
Woonkamer & keuken
De woonkamer is in 2020 royaal uitgebouwd en voorzien van een pvc-vloer in visgraatmotief met hoge plinten. De originele voorkamer aan de straatzijde kan met elegante Portes Françaises met glas-in-lood worden afgesloten — perfect als werk- of zitkamer. Er is een houtkachel aanwezig. De open leefruimte in het midden biedt veel indelingsvrijheid en een ruimtelijk gevoel.
Aan de achterzijde bevindt zich de moderne leefkeuken, compleet met kookeiland, koffiehoek en een prachtige lichtstraat die zorgt voor een overvloed aan daglicht. De glazen pui met openslaande deuren verbindt binnen en buiten op natuurlijke wijze.
De keuken is voorzien van een 4-pits gaskookplaat, geïntegreerde recirculatie-afzuigkap, vaatwasser, oven, magnetron, koel-vriescombinatie en veel kastruimte. Het werkblad en de afwerking zijn van hoogwaardige kwaliteit en geven de keuken een luxe uitstraling.
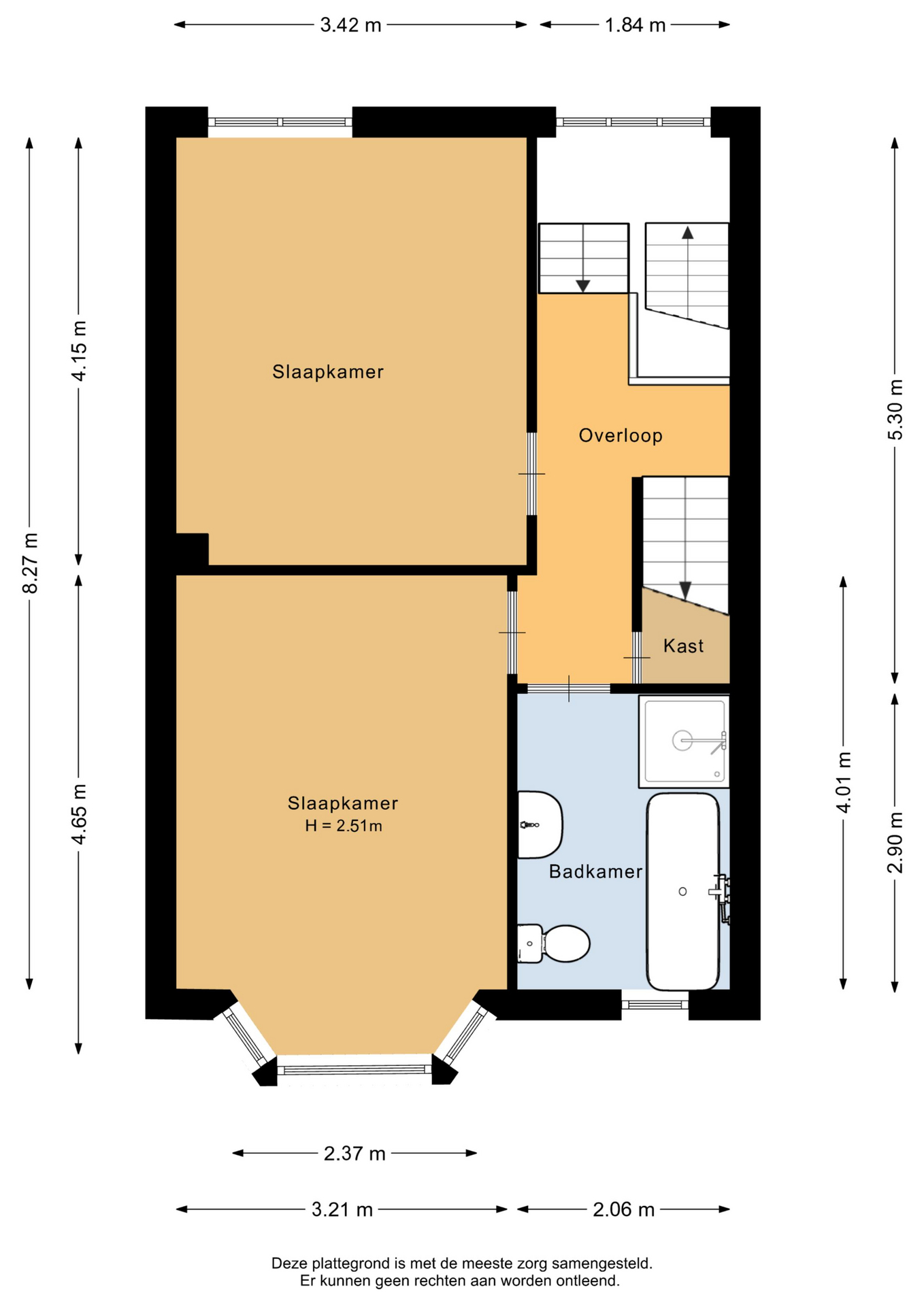
Eerste verdieping
Via de stijlvolle bordestrap met glas-in-loodramen kom je op de eerste verdieping. De overloop is voorzien van een doorlopende laminaatvloer en biedt toegang tot twee ruime slaapkamers en de badkamer.
De volledig betegelde badkamer is uitgerust met een ligbad, inloopdouche, tweede toilet, wastafelmeubel en designradiator.
Tweede verdieping
De tweede verdieping biedt nog eens twee slaapkamers. Beiden zijn voorzien van laminaatvloeren. Onder de dakkapel is extra bergruimte met schuifdeuren gecreëerd. Op de overloop is een airco geplaatst en via een luik is de bergzolder bereikbaar.
Bergzolder
De bergzolder is via een schuiftrap bereikbaar en netjes afgetimmerd — ideaal voor extra opslag.
Tuin
De fraai aangelegde achtertuin is bereikbaar via een recht van overpad over een brede achterweg. De tuin beschikt over een overdekte entree, een berging voor fietsen en een gezellig overdekt zitgedeelte. Verder is de tuin voorzien van gras, hagen en schuttingen voor optimale privacy en trapjes die leiden naar zowel de kelder als de leefkeuken.
Highlights op een rij
– Authentieke jaren ’30 details: glas-in-lood, terrazzo vloer en paneeldeuren
– In 2020 uitgebouwd met royale leefkeuken en lichtstraat
– Gezellige woonkamer met gesloten houthaard
– Luxe keuken met kookeiland en complete inbouwapparatuur
– Vier slaapkamers en extra bergzolder
– Moderne badkamer met ligbad én douche
– Fraai aangelegde tuin met overdekt terras en vrije achterom
– Rustige ligging, op loopafstand van het centrum en nabij voorzieningen
– Dakisolatie, geïsoleerde aanbouw, grotendeels HR++ glas, airco
Een woning met een ziel, waar elke ruimte een verhaal vertelt. Authentiek, warm en helemaal klaar voor de toekomst.
Overdracht
Bouwvorm
Indeling
Energie
Buitenruimte
Bergruimte
Video's

Op zoek naar een partner in vastgoed?
Maak kennis met VeTeBe
Wat je vraag ook is, VeTeBe staat voor je klaar.
"*" geeft vereiste velden aan














































