
Oude Baan 56
Overzicht
Verrassend ruime 2-onder-1-kapwoning met 3 slaapkamers en een ruime berging op de begane grond! Deze woning combineert veel ruimte met praktisch wonen. De lichte doorzonwoonkamer met grote schuifpui naar de achtertuin zorgt voor een ruimtelijk gevoel. Op de begane grond is een grote berging/bijkeuken aanwezig en achter de woning ligt een omheinde achtertuin waar je…
Kenmerken
Foto's
Omschrijving
Verrassend ruime 2-onder-1-kapwoning met 3 slaapkamers en een ruime berging op de begane grond!
Deze woning combineert veel ruimte met praktisch wonen. De lichte doorzonwoonkamer met grote schuifpui naar de achtertuin zorgt voor een ruimtelijk gevoel. Op de begane grond is een grote berging/bijkeuken aanwezig en achter de woning ligt een omheinde achtertuin waar je volop privacy ervaart.
Boven vind je 3 slaapkamers, 2 badkamers en een handige bergvliering — ideaal voor extra opslag of speelruimte. Daarmee is dit een complete gezinswoning met authentieke uitstraling én volop mogelijkheden!
Het centrum van Reuver met een uitgebreid winkelaanbod én het treinstation ligt niet ver weg. Ook basisscholen en middelbaar onderwijs zijn in Reuver te vinden.
Op een kleine 200 meter afstand loop je zo het bos in, richting de Maas!
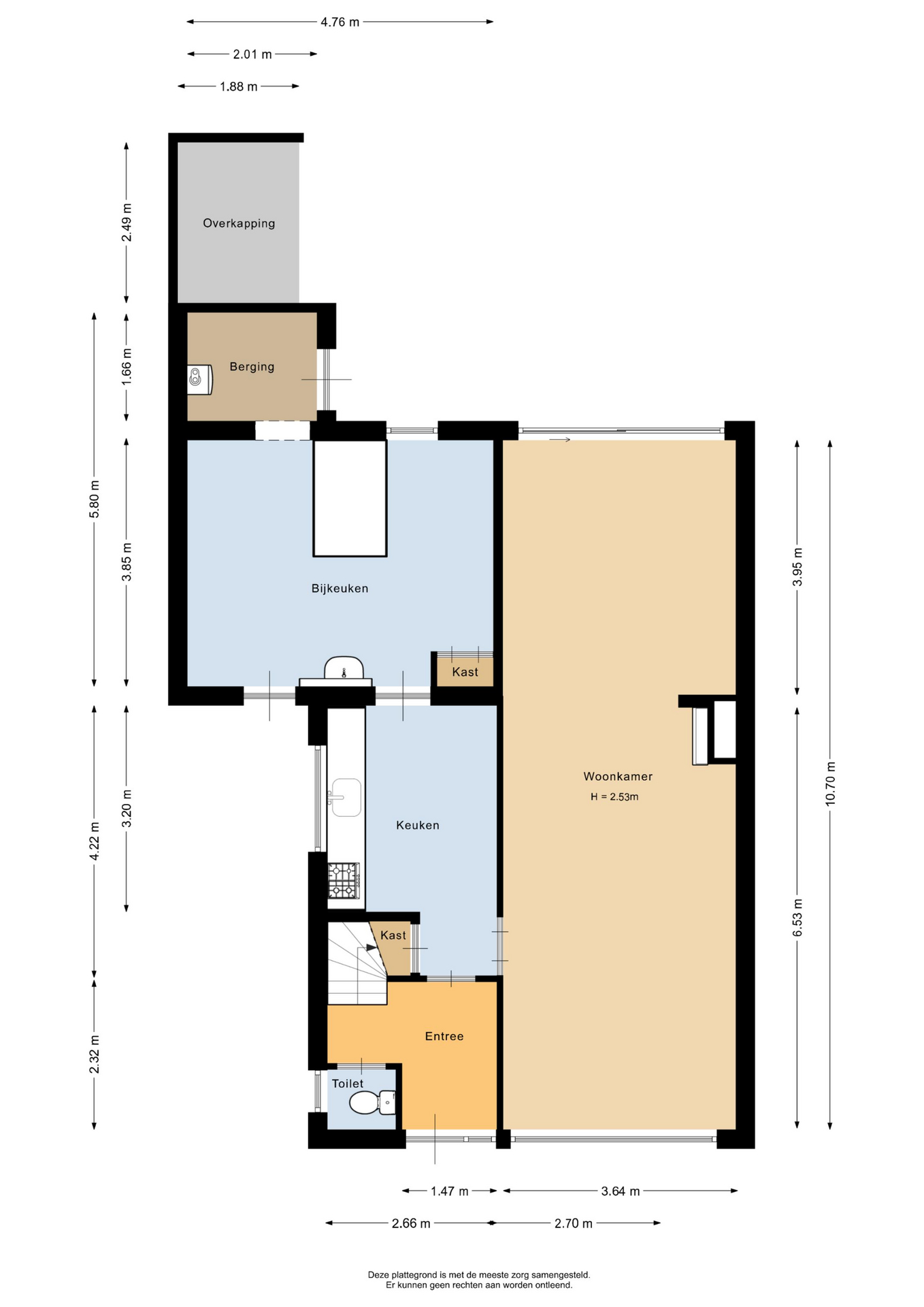
Begane grond
In de hal ligt vloerbedekking. Hier bevinden zich de meterkast en het toilet. Vanuit de hal zijn de woonkamer en keuken bereikbaar.
De ruime en lichte doorzonwoonkamer heeft een oppervlakte van maar liefst 39 m². De aluminium schuifpui zorgt voor direct tuincontact. In de dichte keuken ligt een tegelvloer. Er zijn een oven, 4-pits fornuis en afzuigkap aanwezig. De kelderkast is ideaal als ruime provisiekast.
De grote berging/bijkeuken (18 m²) kan voor diverse doeleinden gebruikt worden; denk bijvoorbeeld aan een hobby/klusruimte. Door de aanwezigheid van een eigen buitendeur kan deze ruimte ook prima als salon/praktijk aan huis worden gebruikt. Zelfs een slaapkamer met douche/badkamer zou hier goed passen! Er ligt een tegelvloer en er is een wasbak met warm en koud water aanwezig. De vaste kasten zorgen voor veel opbergruimte. De loopdeur biedt toegang tot de tuin.
In de aansluitende berging/hal bevindt zich de cv-ketel. Ook vanuit hier is de tuin toegankelijk door middel van een loopdeur.
1ste verdieping
De overloop is voorzien van vloerbedekking. Vanuit hier zijn de 3 slaapkamers en 2 badkamers bereikbaar.
Alle slaapkamers zijn ruim en ze hebben een laminaatvloer of tapijttegels. Op één slaapkamer is een vaste kastenwand aanwezig en op een andere slaapkamer staat een vast bureau.
In de grote badkamer vind je een ligbad, toilet en wastafel. De ruimte is geheel betegeld en het raam zorgt voor daglicht en natuurlijke ventilatie. De 2de badkamer heeft een douche en wastafel. De ruimte is eveneens geheel betegeld en voorzien van een radiator en mechanische ventilatie.
Vliering
De bergvliering is bereikbaar door middel van de vlizotrap op de overloop van de 1ste verdieping.
Tuin
De achtertuin is geheel omheind. Je geniet hier van veel privacy doordat er geen inkijk is. Aan de zijkant bevindt zich een kleine berging voor bijvoorbeeld houtopslag en tuingereedschap.
Er zijn elektra en een waterpunt aanwezig.
Bijzonderheden
– Houten kozijnen met deels dubbel glas. Het glas in lood is allemaal enkel glas. De schuifpui in de woonkamer is van aluminium.
– Het pannendak is omstreeks 1990 samen met de buren geheel vernieuwd en voorzien van een uitstekend isolatiepakket.
– Rolluik van de keukenraam is elektrisch.
Overdracht
Bouwvorm
Indeling
Energie
Buitenruimte
Bergruimte
Video's

Op zoek naar een partner in vastgoed?
Maak kennis met VeTeBe
Wat je vraag ook is, VeTeBe staat voor je klaar.
"*" geeft vereiste velden aan





































