
Seinestraat 84
Overzicht
TE HUUR! –> BESCHIKBAAR PER DIRECT! INSCHRIJVEN IS VERPLICHT! Dit, op de 2e verdieping gelegen appartement, heeft een mooie terras vanwaar u een geweldig uitzicht heeft over de Maas. Indeling: Begane grond: Via de hoofdentree zijn de parkeerplaatsen in de parkeergarage/kelder te bereiken. De toegangspoort van de parkeergarage is te openen met een afstandsbediening. 2e…
Kenmerken
Foto's
Omschrijving
TE HUUR! –> BESCHIKBAAR PER DIRECT!
INSCHRIJVEN IS VERPLICHT!
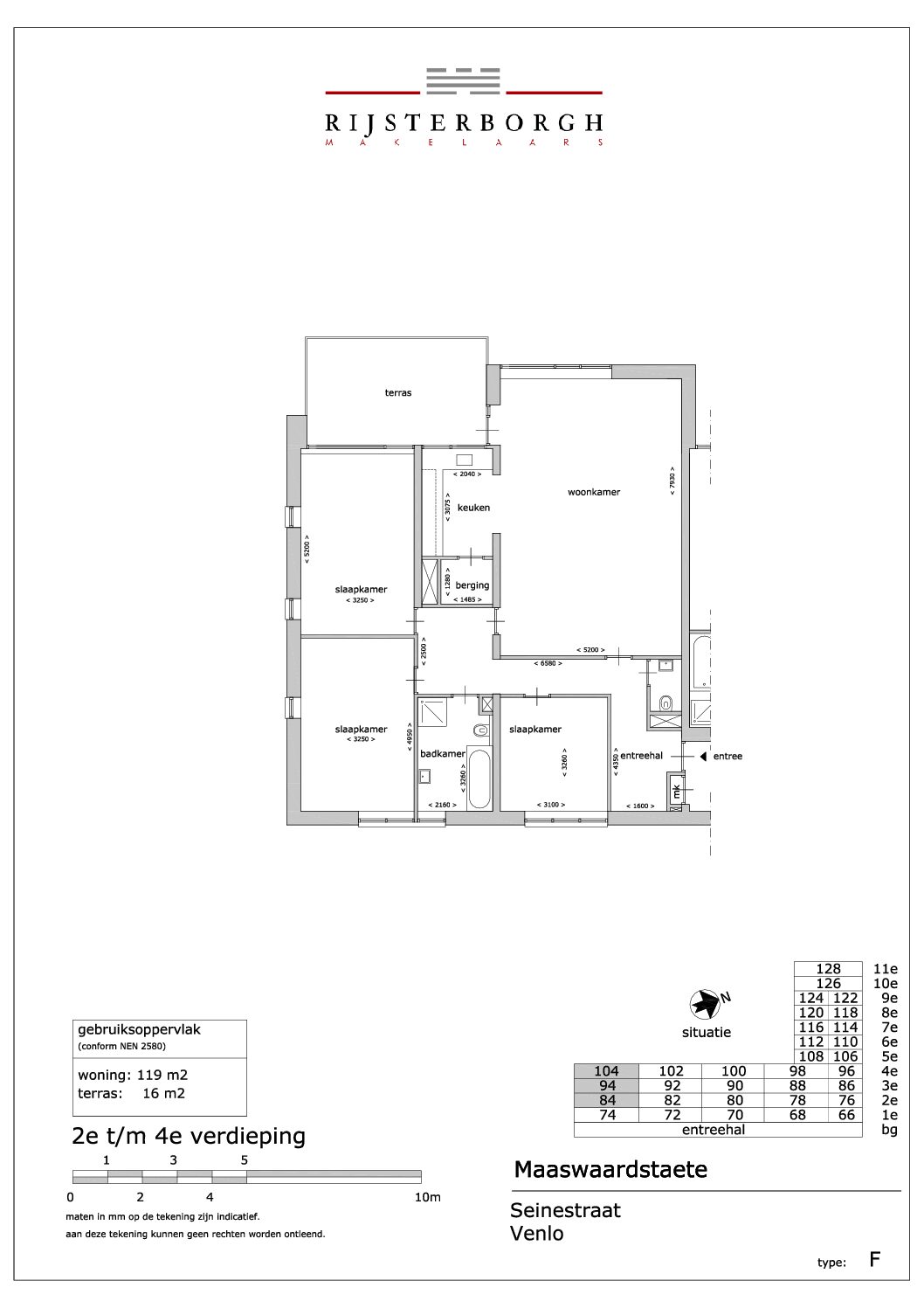
Dit, op de 2e verdieping gelegen appartement, heeft een mooie terras vanwaar u een geweldig uitzicht heeft over de Maas.
Indeling:
Begane grond:
Via de hoofdentree zijn de parkeerplaatsen in de parkeergarage/kelder te bereiken. De toegangspoort van de parkeergarage is te openen met een afstandsbediening. 
2e Verdieping:
Vanuit de lift komt u bij de voordeur van het appartement. De ruime hal heeft voldoende ruimte voor een garderobe. Vanuit de hal is er toegang tot de royale woonkamer. De ruime half open keuken is voorzien van diverse apparatuur. Vanuit de woonkamer is er toegang tot het terras (ca. 16 m²). Het appartement beschikt over 3 slaapkamers en een badkamer met ligbad, douche en toilet. Vanuit de hal is er verder nog toegang tot een separaat toilet met hangcloset en fonteintje en berging met witgoedaansluiting. 
Bijzonderheden:
Aan de voorzijde van het appartementencomplex is voldoende parkeergelegenheid voor bezoekers.
Dit appartement is gelegen tegen het levendige stadshart van Venlo in de buurt van rustige wandelgebieden, sportaccommodaties en culturele instellingen. Water en natuur spelen een belangrijke dominante rol in de omgeving van de “Maaswaardstaete”.
Huurprijs € 1.594,00 per maand, excl. g/w/e
De huurprijs is inclusief parkeerplaats
Voorschot servicekosten € 65,00 per maand 
Interesse of meer informatie? Mail dan naar verhuur@vetebe.nl.
Voorwaarden:
– Als inkomenseis hanteert verhuurder de norm dat uw bruto maandinkomen (inclusief vakantiegeld) minimaal gelijk
dient te zijn aan 3,5 – 4 maal de maandhuur (bespreekbaar)
– Uw arbeidsovereenkomst moet minimaal een jaarcontract zijn
– De huurovereenkomst wordt aangegaan voor de minimale duur van 1 jaar
– De waarborgsom bedraagt 1-2 x de maandhuur
– Huisdieren in overleg
– Huurovereenkomst wordt gesloten na goedkeuring van de eigenaar
Graag ontvangen wij de volgende gegevens in PDF:
U bent werknemer in vaste dienst:
– kopie paspoort/ID-kaart
– verklaring huidige hypotheekverstrekker of verhuurder
– werkgeversverklaring
– kopie 3 recente salarisstroken
– bankafschrift uitbetaling loon/uitkering laatste 3 maanden
U bent zelfstandig ondernemer:
– kopie paspoort/ID-kaart
– verklaring huidige verhuurder of hypotheekverstrekker
– kopie balans en winst-/verliesrekening, goedgekeurd door een erkend accountant
– kopie inschrijving handelsregister KvK
Na het aanleveren van de documenten geef je automatisch toestemming voor het controleren van deze gegevens.
To be eligible for this property, you must take into account a number of conditions and documents to be supplied:
Conditions:
– Pets in discuss ;
– Rental agreement is concluded after approval of the owner;
– Employment contract of at least one year;
– Energy and internet costs are for the account of the tenant;
– Minimum rental period is 1 year.
– 1-2 Month deposit;
– A credit check is part of the selection procedure.
We would like to receive the following information in PDF:
You are a permanent employee:
– copy of passport/ID card;
– statement current mortgage lender or landlord;
– employer’s declaration;
– copy of 3 recent salary slips;
– Document of payment salary of your bankaccount. 
You are an independent entrepreneur:
– copy of passport/ID card;
– statement current landlord or mortgage lender;
– copy of balance sheet and profit/loss account, approved by a recognized accountant.
– copy commerce of chambre 
After submitting the documents, you automatically give permission to check this information.
Overdracht
Bouwvorm
Indeling
Energie
Buitenruimte
Bergruimte

Op zoek naar een partner in vastgoed?
Maak kennis met VeTeBe
Wat je vraag ook is, VeTeBe staat voor je klaar.
"*" geeft vereiste velden aan




















