
Straelseweg 50A
Overzicht
REAGEREN IS NIET MEER MOGELIJK! TE HUUR! –> BESCHIKBAAR PER HALF NOVEMBER 2025! INSCHRIJVEN IS VERPLICHT! Luxe en geheel gasloos appartement gelegen op de tweede verdieping nabij het centrum van Venlo. Het complex is in 2024 getransformeerd naar luxe appartementen. Het appartement beschikt over vloerverwarming (m.u.v. de slaapkamers). en is voorzien van een mooie pvc…
Kenmerken
Foto's
Omschrijving
REAGEREN IS NIET MEER MOGELIJK!
TE HUUR! –> BESCHIKBAAR PER HALF NOVEMBER 2025!
INSCHRIJVEN IS VERPLICHT!
Luxe en geheel gasloos appartement gelegen op de tweede verdieping nabij het centrum van Venlo. Het complex is in 2024 getransformeerd naar luxe appartementen.
Het appartement beschikt over vloerverwarming (m.u.v. de slaapkamers). en is voorzien van een mooie pvc houtlookvloer. Op de begane grond is een aparte berging gelegen.
Het appartement is gelegen op een goede locatie – dichtbij de supermarkt (Jumbo) – dichtbij de uitvalswegen A73 richting Nijmegen, Venlo en Maastricht – A67 richting Eindhoven – A74/61 richting Duitsland – het centraal station is binnen enkele minuten bereikbaar.
Indeling:
Begane grond:
Centrale entree en opgang naar de verdieping.
Tweede verdieping:
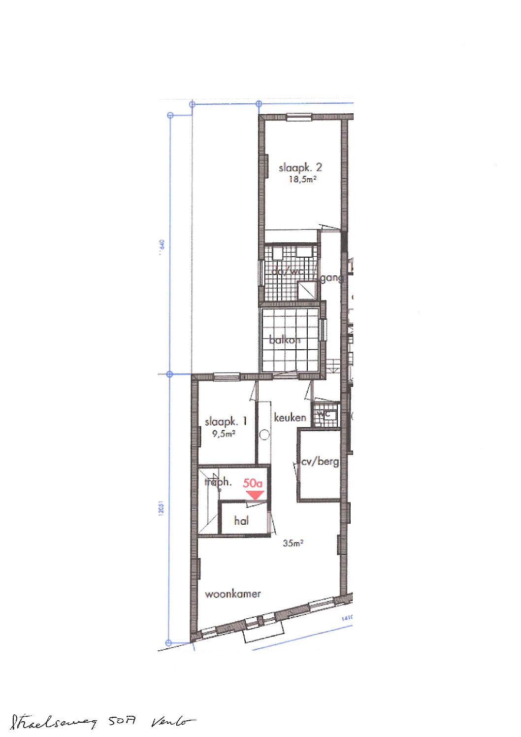
Entree/hal met toegang tot de royale woonkamer met open keuken (ca. 35 m²). Door de vele raampartijen biedt de woonkamer veel lichtinval. De keuken is van alle gemakken voorzien zoals onder andere een inductiekookplaat, afzuigkap, combi oven en koelkast. Er is een aansluiting voor een losse vaatwasser in de berging. Vanuit de keuken is het balkon van ca. 7 m² bereikbaar. Aparte bergruimte met aansluiting voor het witgoed en de warmtepomp. Achter de keuken is de eerste slaapkamer van ca. 10 m² gelegen. Vanuit de keuken is het toilet bereikbaar en loop je middels een speelse gang met trapje naar beneden. Hier bevindt zich de geheel betegelde badkamer met inloopdouche met regendouche, wastafel met meubel, toilet en de tweede slaapkamer van maar liefst ca. 19 m².
Het appartement heeft een eigen dakterras. Tevens is er nog een gezamenlijke buitenruimte op de begane grond waar je heerlijk kunt genieten van een goed boek met een kopje koffie.
Huurprijs: € 1.200,00 per maand, excl. energiekosten en TV/internet
Voorschot servicekosten: € 50,00
Interesse of meer informatie? Mail dan naar verhuur@vetebe.nl.
Voorwaarden:
– Huisdieren niet toegestaan;
– Minimale huurtermijn 2 jaar;
– Uw inkomen is 3-4 keer de kale huur;
– Waarborgsom: 2x maandhuur;
– Een creditcheck maakt onderdeel uit van de selectieprocedure.
Graag ontvangen wij de volgende gegevens:
U bent werknemer in vaste dienst:
– kopie paspoort/ID-kaart;
– verklaring huidige hypotheekverstrekker of verhuurder;
– werkgeversverklaring;
– kopie 3 recente salarisstroken;
– bankafschrift uitbetaling loon/uitkering laatste 3 maanden.
U bent zelfstandig ondernemer:
– kopie paspoort/ID-kaart;
– verklaring huidige verhuurder of hypotheekverstrekker;
– kopie balans en winst-/verliesrekening, goedgekeurd door een erkend accountant;
– kopie inschrijving handelsregister KvK.
To be eligible for this property, you must take into account a number of conditions and documents to be supplied:
Conditions:
– Pets not allowed;
– Minimum rental periode is 2 years;
– Your income is 3-4 times the basic rent;
– 2 Months deposit;
– A credit check is part of the selection procedure.
We would like to receive the following information:
You are a permanent employee:
– copy of passport/ID card;
– statement current mortgage lender or landlord;
– employer’s declaration;
– copy of 3 recent salary slips;
– bank statement of salary/benefit payments for the last 3 months.
You are an independent entrepreneur:
– copy of passport/ID card;
– statement current landlord or mortgage lender;
– copy of balance sheet and profit/loss account, approved by a recognized accountant;
– copy of registration with the Chamber of Commerce trade register.
Overdracht
Bouwvorm
Indeling
Energie
Buitenruimte
Bergruimte

Op zoek naar een partner in vastgoed?
Maak kennis met VeTeBe
Wat je vraag ook is, VeTeBe staat voor je klaar.
"*" geeft vereiste velden aan

















