
Terracottalaan 90
Overzicht
Ruime tussenwoning met diepe achtertuin op het zuiden in een kindvriendelijke woonwijk – Energielabel A! Op een rustige locatie, in een kindvriendelijke buurt en dichtbij alle dagelijkse voorzieningen, ligt deze fijne en ruime tussenwoning. Binnen vind je op de 1ste verdieping 2 grote slaapkamers en via de vaste trap bereik je de 2de verdieping met…
Kenmerken
Foto's
Omschrijving
Ruime tussenwoning met diepe achtertuin op het zuiden in een kindvriendelijke woonwijk – Energielabel A!
Op een rustige locatie, in een kindvriendelijke buurt en dichtbij alle dagelijkse voorzieningen, ligt deze fijne en ruime tussenwoning. Binnen vind je op de 1ste verdieping 2 grote slaapkamers en via de vaste trap bereik je de 2de verdieping met extra kamers: perfect als werkplek, hobbyruimte of extra slaapkamer.
Buiten verrast de woning met een omheinde, diepe achtertuin op het zuiden met vrije achterom. Scholen, winkels en openbaar vervoer zijn allemaal op korte afstand te bereiken — ideaal voor wie comfortabel en praktisch wil wonen.
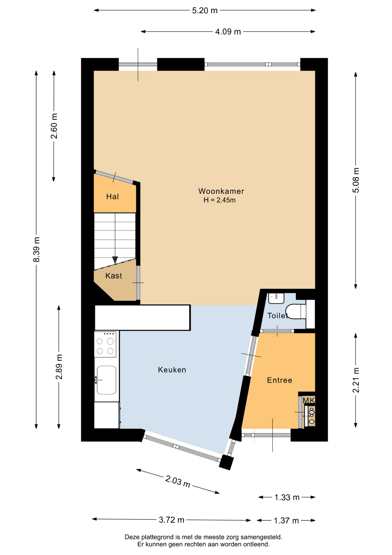
Begane grond
In de hal zijn de meterkast en het toilet met fonteintje aanwezig. Op de begane grond ligt een doorlopende laminaatvloer.
In de lichte woonkamer bevinden zich een trapkast voor extra bergruimte en de afgesloten trap naar de 1ste verdieping. Aan de achterzijde biedt de loopdeur directe toegang tot de achtertuin. Voorin staat de open keuken in een L-opstelling. Deze is voorzien van een vaatwasser, oven, koelkast en keramische kookplaat.
1ste verdieping
Vanuit de overloop zijn de 2 ruime slaapkamers en de badkamer bereikbaar. De overloop en slaapkamers zijn voorzien van een doorlopende laminaatvloer.
De badkamer is geheel betegeld en heeft een ligbad met douche, wastafelmeubel en toilet.
2de verdieping
De 2de verdieping is bereikbaar door middel van de vaste trap. De ruime overloop biedt toegang tot een extra slaapkamer en de berging/technische ruimte. In deze berging zijn de cv-ketel, WTW en zonneboiler aanwezig. Tevens bevindt zich hier de witgoedaansluiting waardoor de kamer ook als wasruimte fungeert.
De extra slaapkamer heeft vloerbedekking.
Tuin
De tuin ligt op het zuiden en is volledig omheind. Je geniet hier van voldoende privacy. Het houten schuurtje is voorzien van elektra. Daarnaast bevindt zich de vrije achterom.
De voortuin is netjes aangelegd. Het looppad biedt toegang tot de voordeur.
Bijzonderheden
– Houten en kunststof kozijnen met dubbel glas.
– Aan de voorzijde van de woning zijn, op de 1ste verdieping, rolluiken aanwezig.
– De badkamer en het toilet zijn in 2017 vernieuwd.
– Aan de achterzijde kan de woning nog worden uitgebouwd. Door de diepte van het perceel, blijft er dan nog steeds een ruime tuin over.
Overdracht
Bouwvorm
Indeling
Energie
Buitenruimte
Bergruimte
Video's

Op zoek naar een partner in vastgoed?
Maak kennis met VeTeBe
Wat je vraag ook is, VeTeBe staat voor je klaar.
"*" geeft vereiste velden aan




























