
Thorbeckestraat 28
Overzicht
2-onder-1 kapwoning met 12 zonnepanelen, meerdere airco’s, drie slaapkamers en een omheinde achtertuin! Deze woning biedt alles voor comfortabel en duurzaam wonen. Dankzij de 12 zonnepanelen en airco’s in de woonkamer en twee slaapkamers woon je hier energiezuinig én aangenaam in elk seizoen. Binnen vind je een lichte woonkamer met pelletkachel, wat zorgt voor extra…
Kenmerken
Foto's
Omschrijving
2-onder-1 kapwoning met 12 zonnepanelen, meerdere airco’s, drie slaapkamers en een omheinde achtertuin!
Deze woning biedt alles voor comfortabel en duurzaam wonen. Dankzij de 12 zonnepanelen en airco’s in de woonkamer en twee slaapkamers woon je hier energiezuinig én aangenaam in elk seizoen.
Binnen vind je een lichte woonkamer met pelletkachel, wat zorgt voor extra sfeer en warmte. De woning beschikt daarnaast over drie slaapkamers, met de mogelijkheid om een vierde kamer op zolder te creëren. De omheinde achtertuin is voorzien van een stenen berging en vrije achterom.
Kelder
De provisiekelder is voorzien van een tegelvloer. Vanuit hier is er toegang tot de kruipruimte.
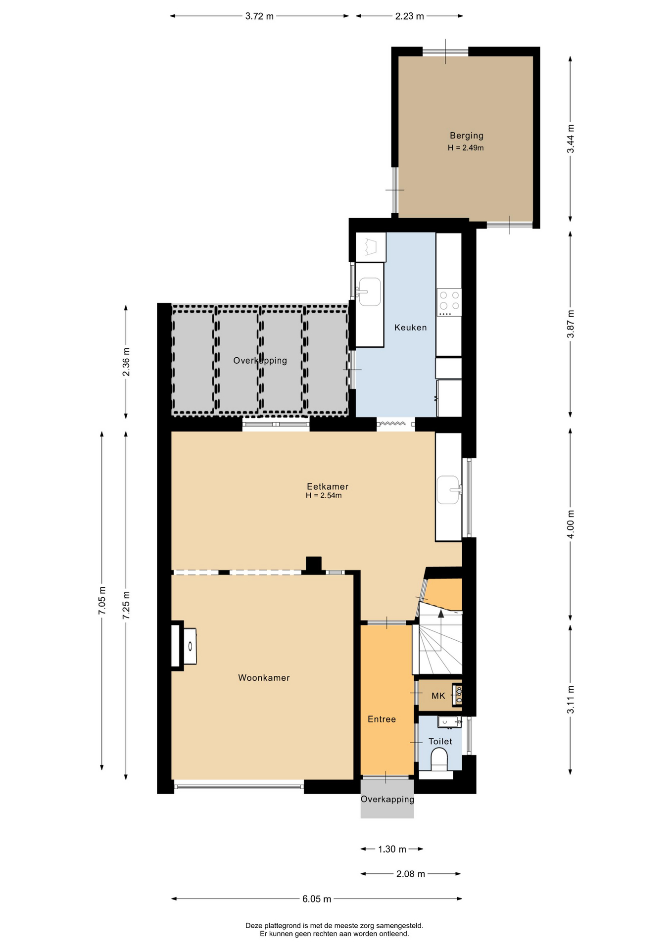
Begane grond
In de hal ligt een laminaatvloer. Hier zijn de meterkast en het toilet met fonteintje aanwezig. Vanuit de hal is de woonkamer bereikbaar. De ruime woonkamer is voorzien van een laminaatvloer, airco en pelletkachel. Een deur biedt toegang tot de kelder.
De keuken is uitgerust met een inductiekookplaat, afzuigkap, oven, vaatwasser en een grote, losse koelkast met diepvries. Er ligt een laminaatvloer en er is een witgoedaansluiting aanwezig. Een loopdeur biedt toegang tot de tuin en er is tevens een kleine vliering bereikbaar.
Eerste verdieping
Vanuit de overloop zijn de drie slaapkamers en de badkamer bereikbaar.
Alle slaapkamers zijn voorzien van een laminaatvloer en rolluiken. Twee slaapkamers hebben airco. De badkamer is geheel betegeld. Er zijn een inloopdouche, dubbel wastafelmeubel, toilet en designradiator aanwezig. Het raam met rolluik zorgt voor voldoende daglicht.
Zolder
De grote zolder is bereikbaar door middel van een vlizotrap. De zolder is dus verrassend ruim en er kan eventueel een extra slaapkamer gerealiseerd worden. De cv-ketel is hier aanwezig.
Tuin
De achtertuin is geheel omheind en voorzien van een grote vijver. De overkapping is voorzien van elektra en is volledig af te sluiten door middel van zeilwanden. In het stenen schuurtje zijn elektra en de tweede witgoedaansluiting aanwezig.
De tweede overkapping is ideaal voor het stallen van fietsen. Hieronder bevindt zich de vrije achterom.
Bijzonderheden
– Kunststof kozijnen met HR glas.
– Grotendeels voorzien van rolluiken.
– Airco in de woonkamer en op twee slaapkamers.
– 12 zonnepanelen.
Overdracht
Bouwvorm
Indeling
Energie
Buitenruimte
Bergruimte
Video's

Op zoek naar een partner in vastgoed?
Maak kennis met VeTeBe
Wat je vraag ook is, VeTeBe staat voor je klaar.
"*" geeft vereiste velden aan






























