
Waterloostraat 114
Overzicht
REAGEREN IS NIET MEER MOGELIJK! TE HUUR! –> BESCHIKBAAR PER 1 OKTOBER 2024! INSCHRIJVEN IS VERPLICHT! Luxe 3-kamer appartement, gelegen op de 1e etage van een exclusief appartementencomplex. In zeer goede staat van onderhoud. Een liftinstallatie is aanwezig. Dit complex is gelegen op het schitterende voormalige kloosterlandgoed Domein Moubis, een volledig omsloten landgoed op steenworp…
Kenmerken
Omschrijving
REAGEREN IS NIET MEER MOGELIJK!
TE HUUR! –> BESCHIKBAAR PER 1 OKTOBER 2024!
INSCHRIJVEN IS VERPLICHT!
Luxe 3-kamer appartement, gelegen op de 1e etage van een exclusief appartementencomplex. In zeer goede staat van onderhoud. Een liftinstallatie is aanwezig.
Dit complex is gelegen op het schitterende voormalige kloosterlandgoed Domein Moubis, een volledig omsloten landgoed op steenworp afstand van rivier de Maas. De appartementen hebben een schitterend uitzicht op het klooster en de kloostertuin. Het appartementencomplex is makkelijk te bereiken. De pont tussen Steyl en Baarlo bevindt zich op circa 1 km, openbaar vervoer (bus) is eveneens op loopafstand gelegen. Een supermarkt is op zeer korte afstand gelegen evenals een basisschool. De oprit naar de A-73 is binnen 5 minuten autorijden bereikbaar.
Begane grond:
Entree met bellentableau, brievenbussen en toegang naar lift en trappenhuis.
Eerste verdieping:
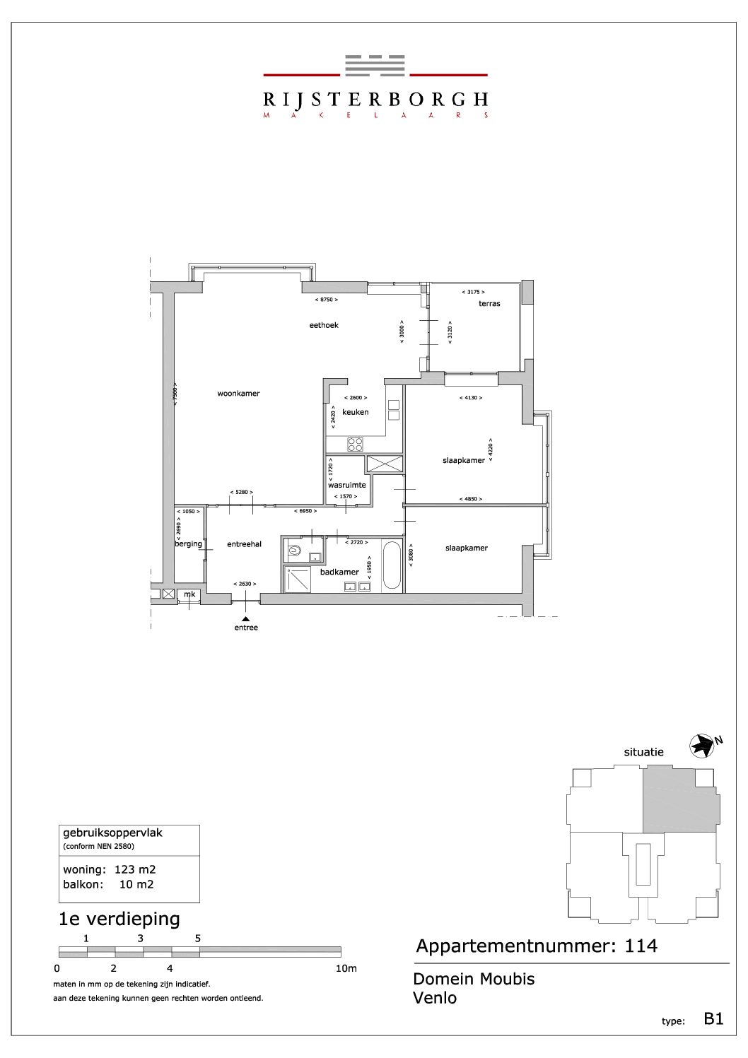
Dit appartement heeft een royale L-vormige living met aansluitend een overdekt balkon, een luxe keuken in hoekopstelling, voorzien van moderne inbouwapparatuur. Twee ruime slaapkamers en een moderne grote badkamer met ligbad, separate douche, twee wastafels en handdoekradiator. Separaat toilet.
Onder het complex bevinden zich de (fietsen)berging en de garage.
Het appartement is voorzien van een mooie PVC vloer.
Huidige huurder biedt nog enkele zaken ter overname aan.
– Vitrages gehele appartement;
– Airco’s.
Verhuurder zal nog zorgen voor een definitief energielabel.
Huurprijs: € 1.445,00 per maand, excl. g/w/e
Voorschot servicekosten: € 106,00 per maand
De kosten voor de parkeerplaats zijn in de huurprijs inbegrepen.
Interesse of meer informatie? Mail dan naar verhuur@vetebe.nl.
Om in aanmerking te komen voor deze woning, dient u rekening te houden met enkele voorwaarden en aan te leveren documenten:
Voorwaarden:
– Huisdieren niet toegestaan.
– Uw inkomen is 3-4 keer de kale huur.
– Minimale huurtermijn is 1 jaar. Daarna maandelijks opzegbaar.
– 1-2 Maanden waarborgsom.
– Een creditcheck maakt deel uit van de selectieprocedure.
Graag ontvangen wij de volgende gegevens:
U bent werknemer in vaste dienst:
– kopie paspoort/ID-kaart;
– verklaring huidige hypotheekverstrekker of verhuurder;
– werkgeversverklaring;
– kopie 3 recente salarisstroken.
U bent zelfstandig ondernemer:
– kopie paspoort/ID-kaart;
– verklaring huidige verhuurder of hypotheekverstrekker;
– kopie balans en winst-/verliesrekening, goedgekeurd door een erkend accountant.
To be eligible for this property, you must take into account a number of conditions and documents to be supplied:
Conditions:
– Pets not allowed;
– Rental agreement is concluded after approval of the owner;
– Employment contract of at least one year;
– Energy and internet costs are for the account of the tenant;
– Minimum rental period is 1 year;
– 1-2 month deposit;
– A credit check is part of the selection procedure.
We would like to receive the following information:
You are a permanent employee:
– copy of passport/ID card;
– statement current mortgage lender or landlord;
– employer’s declaration;
– copy of 3 recent salary slips.
You are an independent entrepreneur:
– copy of passport/ID card;
– statement current landlord or mortgage lender;
– copy of balance sheet and profit/loss account, approved by a recognized accountant.
Overdracht
Bouwvorm
Indeling
Buitenruimte
Bergruimte

Op zoek naar een partner in vastgoed?
Maak kennis met VeTeBe
Wat je vraag ook is, VeTeBe staat voor je klaar.
"*" geeft vereiste velden aan





