
Zwanebloem 23
Overzicht
Wonen met karakter, comfort én een vleugje rust! In een rustige, kindvriendelijke en frisse wijk, op steenworp afstand van de Maas, staat deze uitstekend onderhouden half vrijstaande kwadrantwoning aan de Zwanebloem 23. Een woning die direct het gevoel geeft: hier wil ik wonen. Aan de voorzijde word je verwelkomd door een gezellig hofje met een…
Kenmerken
Foto's
Omschrijving
Wonen met karakter, comfort én een vleugje rust!
In een rustige, kindvriendelijke en frisse wijk, op steenworp afstand van de Maas, staat deze uitstekend onderhouden half vrijstaande kwadrantwoning aan de Zwanebloem 23. Een woning die direct het gevoel geeft: hier wil ik wonen.
Aan de voorzijde word je verwelkomd door een gezellig hofje met een groen aangelegd plantsoen. Een veilige en fijne speelplek voor kinderen en een oase van rust voor bewoners. Scholen, dagelijkse voorzieningen en uitvalswegen bevinden zich op korte afstand – alles binnen handbereik, zonder in te leveren op rust en privacy.
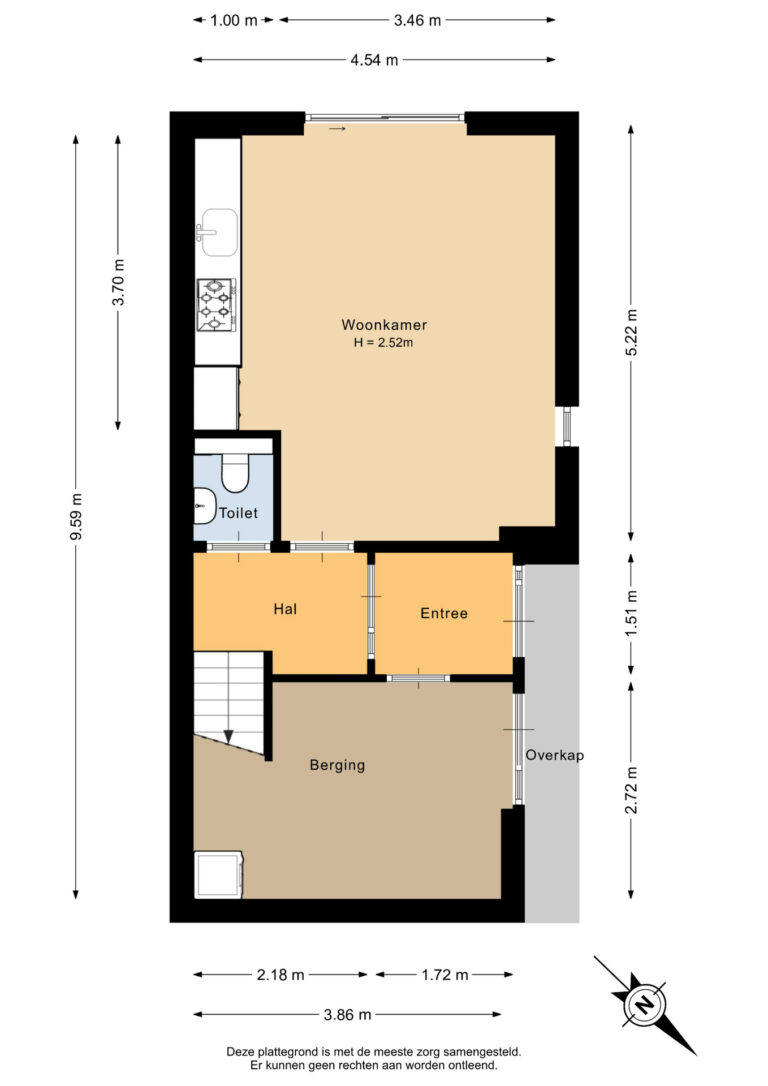
Begane grond
Via de hal met volledig doorgelegde tegelvloer bereik je de keuken, het toilet met fonteintje, de trapopgang en de inpandige berging. Deze praktische berging is zowel van binnen als van buiten bereikbaar en beschikt over de meterkast, witgoedaansluitingen en volop bergruimte.
De ruime leefkeuken vormt het warme hart van de woning op deze woonlaag. Hier kook, leef en geniet je samen. De keuken is compleet uitgerust met een 4-pits gasfornuis, afzuigkap, oven, koelkast en vaatwasser. Dankzij de directe toegang tot het knusse voortuintje op het noordoosten geniet je hier van je eerste kop koffie in de ochtendzon, met uitzicht over de groen aangelegde middenstrook van de straat.
Eerste verdieping
De L-vormige woonkamer op de eerste verdieping is een verrassend lichte en sfeervolle leefruimte. De tegelvloer en de klassieke inbouwkast geven karakter én praktische bergruimte. Aansluitend bereik je het balkon met houten vlonders, een heerlijke plek om in alle privacy te ontspannen na een lange dag.
Tweede verdieping
De overloop biedt toegang tot twee fijne slaapkamers en de badkamer. De badkamer is compleet uitgerust met douche, wastafel, toilet, verwarming en mechanische ventilatie. Ideaal ingedeeld en comfortabel in gebruik.
Bijzonderheden
• Energielabel B
• Bouwjaar 2000
• Halfvrijstaande kwadrantwoning
• Balkon aansluitend aan de woonkamer
• Klein voortuintje op het noordoosten
• Gelegen in een rustige, gewilde wijk nabij de Maas
De combinatie van speelse indeling, praktische ruimtes, buitenmogelijkheden én de geliefde ligging maakt deze woning een buitencategorie.
Overdracht
Bouwvorm
Indeling
Energie
Buitenruimte
Bergruimte
Video's

Op zoek naar een partner in vastgoed?
Maak kennis met VeTeBe
Wat je vraag ook is, VeTeBe staat voor je klaar.
"*" geeft vereiste velden aan

































