
Aan de Zwarte Hond 5
Overzicht
TE HUUR | Recent gerenoveerde bedrijfsruimte met kantoren en omheind buitenterrein gelegen op bedrijventerrein de Winhond in Tegelen. De bedrijfsruimte beschikt over een grote stroomaansluiting. Hierdoor is het object uitermate geschikt voor maakbedrijven. OBJECT: Deze onlangs gerenoveerde bedrijfsruimte is volledig gemoderniseerd en opgebouwd uit een stalen constructie met metselwerkgevels en aluminium kozijnen. Het dak is…
Kenmerken
Omschrijving
TE HUUR | Recent gerenoveerde bedrijfsruimte met kantoren en omheind buitenterrein gelegen op bedrijventerrein de Winhond in Tegelen. De bedrijfsruimte beschikt over een grote stroomaansluiting. Hierdoor is het object uitermate geschikt voor maakbedrijven.
OBJECT:
Deze onlangs gerenoveerde bedrijfsruimte is volledig gemoderniseerd en opgebouwd uit een stalen constructie met metselwerkgevels en aluminium kozijnen. Het dak is recent vernieuwd, geïsoleerd en voorzien van lichtstraten, wat zorgt voor natuurlijk daglicht. De vloeren zijn monolithisch afgewerkt en de ruimte beschikt over twee elektrisch bedienbare sectionaalpoorten, waarvan één recent is vervangen. De bedrijfsruimte wordt verwarmd door een nieuwe direct gestookte gasheater. De kantoren zijn uitgerust met nieuwe plafonds, energiezuinige LED-verlichting, een frisse afwerking van muren en deuren, en stijlvolle PVC-vloeren. Zowel de kantine als de keuken zijn vernieuwd en voorzien van modern schilderwerk en inbouwapparatuur. Het buitenterrein is volledig omheind, deels verhard en deels voorzien van grind, en beschikt over een toegangspoort.
LOCATIE:
Het object bevindt zich op bedrijventerrein De Winhond in Tegelen, gemeente Venlo. De ligging is ideaal, met uitstekende bereikbaarheid via het snelwegennet: de op- en afritten van de A73 (Venlo – Roermond) en A74 (Venlo – Duitsland) liggen op korte afstand van het terrein. Er zijn bovendien ruim voldoende parkeerplaatsen beschikbaar op eigen terrein.
VOORZIENINGEN:
Kantoren:
– Systeemplafond met energiezuinige LED-verlichting
– Moderne PVC-vloeren
– Volledig betegelde sanitaire voorzieningen
– Verwarming via radiatoren aangesloten op een cv-ketel
– Volledig uitgeruste keuken met magnetron, vaatwasser en close-in boiler
Bedrijfsruimte:
– Twee elektrisch bedienbare sectionaalpoorten
– Direct gestookte gasheaters voor efficiënte verwarming
– Lichtstraten voor natuurlijke lichtinval
– Persluchtaansluitingen aanwezig
– Vloeistofdichte betonvloer voor een veilige werkruimte
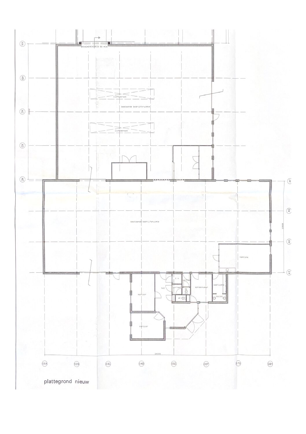
INDELING (IN V.V.O.):
Kantoorruimte:
Entree/hal: 27 m²
Kantoor 1: 17 m²
Kantoor 2: 19 m²
Spreekkamer: 13 m²
Wasruimte: 8 m²
Toiletten en cv-ruimte: 13 m²
Totale oppervlakte kantoorruimte: circa 100 m²
Bedrijfsruimte:
Hal 1: 405 m² (inclusief kantine van 28 m²)
Hal 2: 458 m²
Totaal oppervlakte bedrijfsruimte: 863 m²
Buitenterrein circa 2.500 m²
BIJZONDERHEDEN:
Ruim omheind buitenterrein voor opslag of parkeergelegenheid
Energielabel B
Hoog vermogen stroomaansluiting van 3 x 250 Ampère
Uitbreidingsmogelijkheden voor de bedrijfsruimte
HUURCONDITIES:
Huurprijs: € 7.000,- per maand, exclusief BTW
Huurtermijn: 5 jaar
Waarborgsom: ter grootte van drie maanden huur
Geen servicekosten van toepassing
Jaarlijkse huurindexering op basis van het CPI-indexcijfer, voor het eerst na 12 maanden
Direct beschikbaar, na goedkeuring door de verhuurder
De informatie in deze advertentie is algemeen van aard en bedoeld als uitnodiging tot onderhandeling. Hoewel de informatie zorgvuldig is samengesteld uit betrouwbare bronnen, kunnen wij geen verantwoordelijkheid nemen voor eventuele onjuistheden. Eventuele tekeningen en plattegronden zijn indicatief en kunnen afwijken van de werkelijkheid. Het sluiten van een huurovereenkomst is afhankelijk van goedkeuring door de opdrachtgever.
Overdracht
Bouwvorm
Oppervlakte en inhoud

Op zoek naar een partner in vastgoed?
Maak kennis met VeTeBe
Wat je vraag ook is, VeTeBe staat voor je klaar.
"*" geeft vereiste velden aan





















