
Emmastraat 49
Overzicht
Multifunctioneel beleggings- en/of gebruiksobject met zelfstandige bovenwoning in directe nabijheid van het centrum van Venlo. In het hart van Venlo bieden wij dit interessante combinatieobject aan, bestaande uit een kantoorruimte op de begane grond en een zelfstandige bovenwoning op de eerste verdieping. Het object wordt in één geheel verkocht en is momenteel volledig leeg en…
Kenmerken
Omschrijving
Multifunctioneel beleggings- en/of gebruiksobject met zelfstandige bovenwoning in directe nabijheid van het centrum van Venlo.
In het hart van Venlo bieden wij dit interessante combinatieobject aan, bestaande uit een kantoorruimte op de begane grond en een zelfstandige bovenwoning op de eerste verdieping. Het object wordt in één geheel verkocht en is momenteel volledig leeg en direct beschikbaar.
Dit object biedt een unieke kans voor zowel beleggers als eindgebruikers, dankzij de flexibiliteit in aanwending:
* Volledig belegging: verhuur van zowel kantoorruimte als woning
* Combinatie eigen gebruik/verhuur: kantoorruimte voor eigen gebruik met verhuur van de bovenwoning
* Optimalisatie / uitponden: splitsen en afzonderlijke verkoop van de units (onder voorbehoud van vergunningen)
De zelfstandige bovenwoning beschikt over een eigen opgang en functioneert volledig onafhankelijk van de commerciële ruimte, wat het object uitermate geschikt maakt voor gescheiden exploitatie.
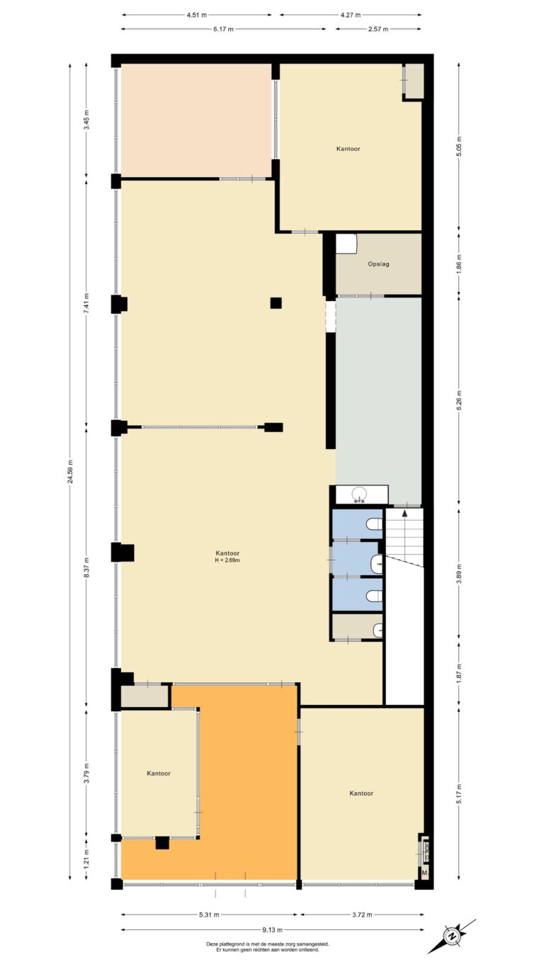
Commerciële ruimte:
kantoor -/ praktijkruimte van ca. 245 m2 BVO. De ruimte is gelegen aan een relatief drukke weg met veel passanten.
Indeling:
Fraaie entree met spreekkamer afgescheiden d.m.v. een glaswand, vergaderruimte, kantoortuin, afgescheiden kantine met koffiecorner en toiletten, kopieerruimte, 2 kantoorruimtes annex spreekkamers.
Kelder met archiefruimte van ca. 45 m2 BVO.
Voorzieningen:
De kantoorruimtes zijn uitgerust met een alarminstallatie, airco-units, verlaagde plafonds met verlichtingsarmaturen. De afgescheiden kantine is uitgerust met een kitchenette.
Bovenwoning:
Via een eigen ingang op de begane grond met eigen meterkast en aparte bemetering, bereik je het ruime appartement op de eerste verdieping.
De overloop biedt toegang tot de drie slaapkamers, zeer ruime badkamer, toilet met fonteintje, praktische berging met cv-installatie inclusief aansluiting witgoed en de zeer grote en erg lichte woonkamer.
De ruime woonkamer valt direct op door de grote hoeveelheid natuurlijk licht. Dankzij de vloerverwarming en de sfeervolle open haard is het hier het hele jaar door aangenaam vertoeven. Via de schuifdeur in de keuken stap je zo het dakterras op. Met een oppervlakte van circa 68 m² en volop privacy is dit de perfecte plek om te ontspannen of gezellig te genieten met familie en vrienden.
De ruime badkamer is compleet uitgerust met een ligbad, aparte douche, dubbele wastafel met meubel, verwarming en een tweede toilet.
De hoofdslaapkamer van circa 21 m² biedt directe toegang tot een tweede dakterras, gelegen op het noordoosten. Ook de andere 2 slaapkamers zijn prettig van formaat en veelzijdig in gebruik.
Bijzonderheden:
De mogelijkheid bestaat om deze woning te splitsen naar twee eenheden, vergunning dient nog te worden aangevraagd.
De aanpandige en verlengde garagebox is optioneel bij te kopen.
Overdracht
Bouwvorm
Oppervlakte en inhoud

Op zoek naar een partner in vastgoed?
Maak kennis met VeTeBe
Wat je vraag ook is, VeTeBe staat voor je klaar.
"*" geeft vereiste velden aan



























































