
Grote Kerkstraat 21
Overzicht
TE HUUR | Op zoek naar een leuke winkel- of kantoorruimte in hartje centrum? Achter deze markante 16e-eeuwse gevel in het voormalige dubbele woonhuis Huis Schreurs is een charmante bedrijfsruimte (ca. 77 m²) beschikbaar. Indeling: Volledig op de begane grond gelegen bedrijfsruimte met pantry en berging. Begane grond: Via de gedeelde entree komt u in…
Kenmerken
Omschrijving
TE HUUR | Op zoek naar een leuke winkel- of kantoorruimte in hartje centrum? Achter deze markante 16e-eeuwse gevel in het voormalige dubbele woonhuis Huis Schreurs is een charmante bedrijfsruimte (ca. 77 m²) beschikbaar.
Indeling:
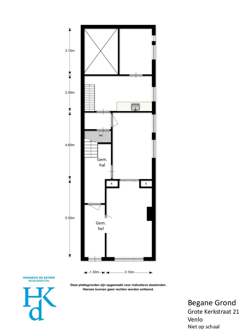
Volledig op de begane grond gelegen bedrijfsruimte met pantry en berging.
Begane grond:
Via de gedeelde entree komt u in de ruimte welke bestaat uit twee geschakelde “kamers” (15,5 en 12,5 m2) gescheiden van elkaar door middel van suitedeuren. Vanuit de achterkamer komt u via een halletje met toilet in de pantry (6 m2) met daarachter een (opslag)ruimte (6m2). Alle ruimtes zijn voorzien van centrale verwarming. Boven de trap naar de kelder (welke niet geschikt is als bergruimte) is een oude bedstede aanwezig welke te gebruiken is als kast.
Locatie:
Gelegen in het centrum van Venlo in een inkomende winkelstraat met veel kleinere, zelfstandige winkelbedrijven. Het pand is daardoor zeer geschikt voor kleinschalige detailhandel of kantoorgebruik. Op korte afstand bevinden zich twee parkeergarages.
Oppervlakte: ca. 77 m².
Huurcondities:
Huurprijs: € 750,- per maand (excl. g/w/e en glasverzekering).
Huurtermijn: in overleg.
Huurbetaling: per maand vooruit te voldoen;
Bankgarantie: conform het ROZ-model ten bedrage van 3 maanden huur.
Indexering : Jaarlijks overeenkomstig het maand prijsindexcijfer volgens het consumentenprijsindexcijfer (CPI)
reeks “alle huishoudens”, gepubliceerd door het Centraal Bureau voor de Statistiek (CBS).
Huurcontract : Standaardmodel Roz-contract model met bijbehorende algemene bepalingen
Aanvaarding: per direct, na goedkeuring van verhuurder.
De vermelde informatie is van algemene aard en is niet meer dan een uitnodiging om in onderhandeling te treden. De informatie is met zorg samengesteld en uit ons inziens betrouwbare bron afkomstig. Ten aanzien van de juistheid ervan kunnen wij echter geen aansprakelijkheid aanvaarden. Eventueel bijgevoegde tekeningen zijn ter indicatie en kunnen afwijken van de werkelijke situatie. Voorts behouden wij het recht voor dat onze opdrachtgever zijn goedkeuring dient te verlenen aan een mogelijke transactie met de ontvanger van deze informatie.
Overdracht
Bouwvorm
Oppervlakte en inhoud

Op zoek naar een partner in vastgoed?
Maak kennis met VeTeBe
Wat je vraag ook is, VeTeBe staat voor je klaar.
"*" geeft vereiste velden aan











