
Hoofdstraat 11
Overzicht
TE HUUR | Bedrijfspand met hoge elektra-aansluitwaardes, 5 hallen v.v. bovenloopkranen en kantoorruimtes in Lottum. Object: Het bedrijfspand met kantoorruimtes en hallen is gerealiseerd in 1986 en in de loop der jaren uitgebreid en vernieuwd. Het pand bestaat uit een voor- en achterbouw waarbij de voorbouw van traditionele bouwaard is. De gevels zijn in metselwerk,…
Kenmerken
Omschrijving
TE HUUR | Bedrijfspand met hoge elektra-aansluitwaardes, 5 hallen v.v. bovenloopkranen en kantoorruimtes in Lottum.
Object:
Het bedrijfspand met kantoorruimtes en hallen is gerealiseerd in 1986 en in de loop der jaren uitgebreid en vernieuwd. Het pand bestaat uit een voor- en achterbouw waarbij de voorbouw van traditionele bouwaard is. De gevels zijn in metselwerk, de kozijnen van aluminium en v.v. van dubbel glas, het schuine dak v.v. van dakpannen en trespa boeiborden en het betonnen dek afgewerkt is met een bitumineuze dakbedekking.
De achterbouw betreft de bedrijfshal welke is opgebouwd uit een staalconstructie, gevels van gedeeltelijk metselwerk, betonblokken en damwandprofielen. Het dak van de bedrijfshal is opgebouwd uit stalen (gedeeltelijk geperforeerde) dakplaten en afgewerkt met een bitumineuze dakbedekking. Alle hallen zijn v.v. lichtstraten over de gehele breedte. De vloeren zijn van monolithisch gestort beton. De hallen hebben een vrije hoogte tot aan het spant van 8 meter.
Locatie:
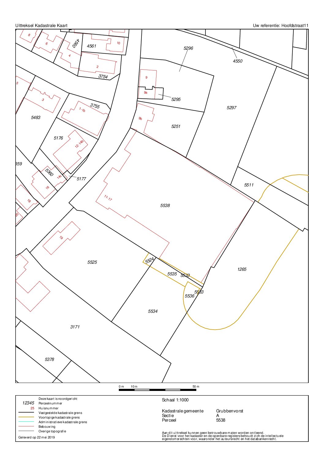
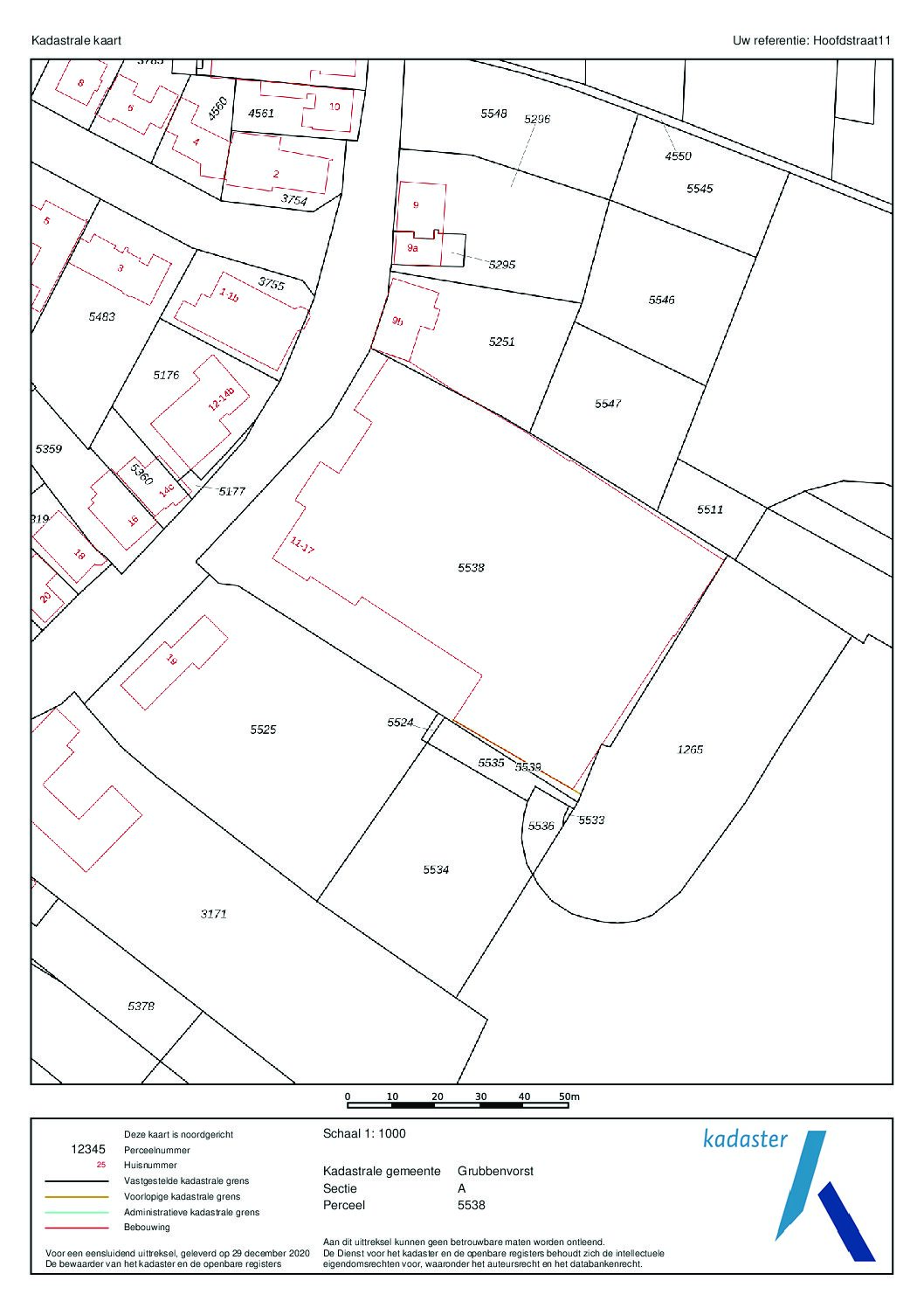
Gelegen in het pittoreske rozendorp Lottum in de gemeente Horst aan de Maas. Het dorp staat bekend als rozendorp vanwege de grote omvang van de rozenteelt gedurende haar geschiedenis tot op heden. Het dorp is zo’n 10 kilometer ten noorden van Venlo gelegen, aan de rivier de Maas. Het object is ligt op een perceel van circa 6.095 m².
Bereikbaarheid:
Diverse bushaltes zijn op loopafstand van het object. Op eigen terrein zijn een aantal parkeerplaatsen aanwezig en rondom het object openbare (onbetaalde) parkeerplekken. Aan de zijkant van het pand is een fietsenstalling op eigen terrein.
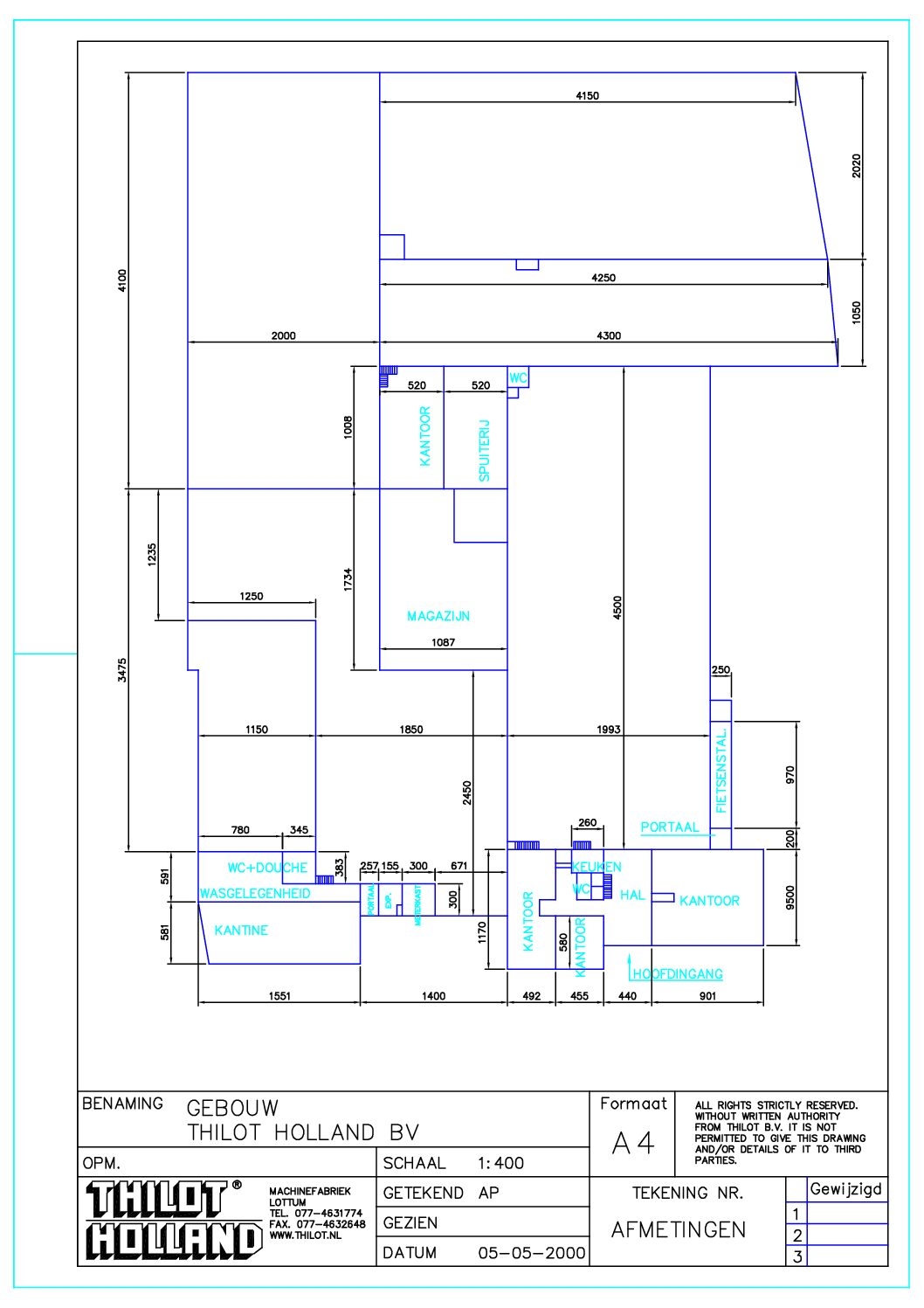
Indeling object (in m² vvo):
Totaal circa 4900 m²
Kantoren voorzijde: circa 390 m²
Kantine: circa 90 m²
Hal 1: circa 897 m²
Hal 2: circa 450 m²
Hal 3: circa 850 m²
Hal 4: circa 820 m²
Hal 5: circa 258 m²
Kantoor: circa 53 m²
Spuiterij: circa 53 m²
Magazijn: circa 189 m²
Opslag: circa 516 m²
Indeling:
Begane grond:
Entree/hal, kantoor met aanmeldloket, gang met dubbele toiletgroep, kantoorruimtes en pantry v.v. keukenblok met vaatwasser, bijkeuken en grote kantoorruimte.
Eerste verdieping:
Kantoor- en vergaderruimtes met dubbele toiletgroep.
Bedrijfshal:
Eerste hal te betreden via trap vanuit voorbouw en een zijportaal. Diverse hallen met kantoor, opslag met magazijn en verdiepingsvloer, portaal en meterkast met meerdere aansluitwaardes van 250 Ampère, Aan de voorzijde van het pand zijn een wasgelegenheid en kantine gesitueerd.
Opleverniveau:
De kantoorruimtes zijn v.v. vloerbedekking en systeemplafonds met TL-verlichting.
Alle hallen zijn v.v. LED-verlichting m.u.v. de montagehal.
Iedere hal is v.v. een bovenloopkraan met een minimaal draaggewicht van 2 tot maximaal 5 ton.
De hallen worden verwarmd middels gasheaters.
Huurcondities:
Huurprijs: €140.000,- per jaar te vermeerderen met het geldende btw-tarief
Huurtermijn: voorkeur 5 + 5 jaar
Bankgarantie: ter grootte van drie maanden huur
Huurbetaling: per maand vooruit te voldoen
Opzegtermijn: 12 maanden
Servicekosten: nader overeen te komen.
Huurcontract: het model gebruikt zoals opgemaakt door de Raad voor Onroerende Zaken (ROZ).
Indexering: jaarlijks, op basis van het maandprijsindexcijfer volgens de
consumentenprijsindex CPI reeks CPI Alle Huishoudens, gepubliceerd door het Centraal Bureau voor
de Statistiek (CBS).
Aanvaarding: direct
Bijzonderheden:
Doordat de bedrijfshal is ingedeeld in meerdere hallen, is het object ook geschikt voor deelverhuur.
Voldoet aan NEN1010-norm.
De vermelde informatie is van algemene aard en is niet meer dan een uitnodiging om in onderhandeling te treden. De informatie is met zorg samengesteld en uit ons inziens betrouwbare bron afkomstig. Ten aanzien van de juistheid ervan kunnen wij echter geen aansprakelijkheid aanvaarden. Eventueel bijgevoegde tekeningen zijn ter indicatie en kunnen afwijken van de werkelijke situatie. Voorts behouden wij het recht voor dat onze opdrachtgever zijn goedkeuring dient te verlenen aan een mogelijke transactie met de ontvanger van deze informatie.
Overdracht
Bouwvorm
Oppervlakte en inhoud

Op zoek naar een partner in vastgoed?
Maak kennis met VeTeBe
Wat je vraag ook is, VeTeBe staat voor je klaar.
"*" geeft vereiste velden aan
































































