
Burgemeester Gubbelsplein 2
Overzicht
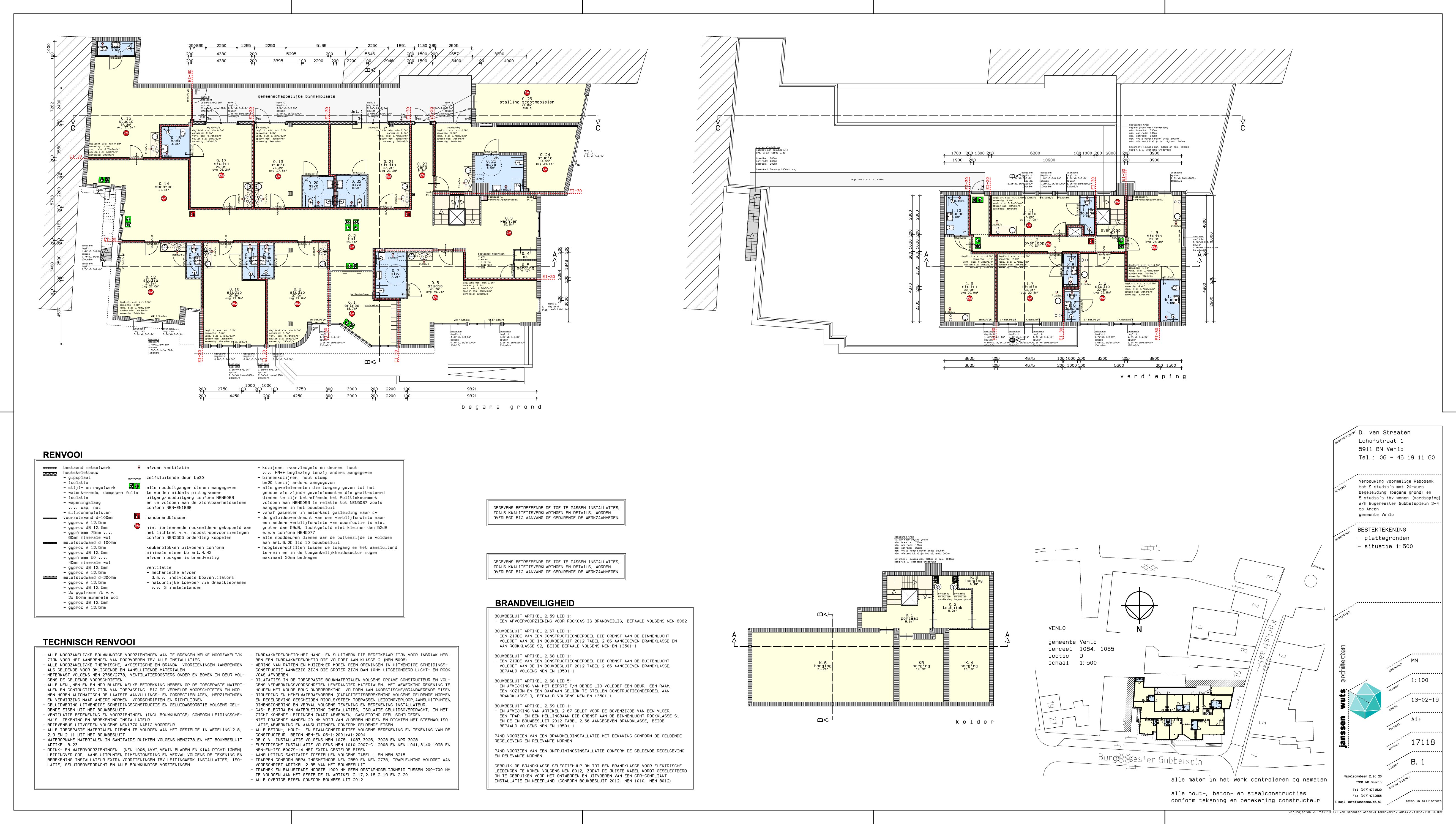
In het pittoreske dorp Arcen bieden wij dit (gedeeltelijk nog te ontwikkelen) wooncomplex aan bestaande uit 14 studio’s. De eerste 5 studio’s, gelegen op te eerste verdieping zijn inmiddels gereed. Het ontwerp voor de 9 studio’s op de begane grond is gereed. Er bestaat ook de mogelijkheid om binnen de huidige bestemming op de begane…
Kenmerken
Omschrijving
In het pittoreske dorp Arcen bieden wij dit (gedeeltelijk nog te ontwikkelen) wooncomplex aan bestaande uit 14 studio’s.
De eerste 5 studio’s, gelegen op te eerste verdieping zijn inmiddels gereed. Het ontwerp voor de 9 studio’s op de begane grond is gereed. Er bestaat ook de mogelijkheid om binnen de huidige bestemming op de begane grond kantoor te houden.
Object:
Binnen dit voormalige kantoor van de Rabobank zijn op de eerste verdieping reeds 5 studio’s gerealiseerd. Binnen de omgevingsvergunning voor de begane grond is rekening gehouden met 9 studio’s. Deze dient nog ingediend te worden, waardoor een en andere conform wens van huurder nog afgestemd kan worden. Alle studio’s beschikken over een eigen afgesloten sanitaire ruimte v.v. douche, wastafel en toilet en een nette keuken v.v. elektrische kookplaat, koelkast, afzuigkap.
Op de begane grond is een gemeenschappelijke binnenplaats en een stallingsruimte voor fietsen, scootmobielen etc. In de kelder zijn 4 ruimte bergingen aanwezig.
Locatie:
Het pand is gelegen in de dorpskern van Arcen nabij diverse voorzieningen. Het object is zeer goed bereikbaar met eigen vervoer en openbaar vervoer. Rondom het pand zijn meer dan genoeg openbare parkeerplaatsen.
Indeling object (in m²):
Begane grond:
Huidige situatie kantoorruimte totaal: 483 m²
Eerste verdieping:
Totaal: c.a. 145 m²
Studio 1 (1.11): c.a. 22 m²
Studio 2 (1.3) : c.a. 28 m²
Studio 3 (1.5) : c.a. 27 m²
Studio 4 (1.7) : c.a. 27 m²
Studio 5 (1.9) : c.a. 25 m²
Te realiseren studio’s begane grond volgens bestek:
Studio 1 (0.6) : c.a. 48 m²
Studio 2 (0.8) : c.a. 30 m²
Studio 3 (0.10): c.a. 30 m²
Studio 4 (0.12): c.a. 30 m²
Studio 5 (0.15): c.a. 40 m²
Studio 6 (0.17): c.a. 31 m²
Studio 7 (0.19): c.a. 32 m²
Studio 8 (0.21): c.a. 32 m²
Studio 9 (0.24): c.a. 43 m²
Gemeenschappelijke binnenplaats: c.a. 52 m²
Stalling scootmobielen: c.a. 22 m²
Opleveringsniveau:
Alle studio’s zijn v.v. een badkamer met toilet, douche en wastafel, keukeninrichting met afzuigkap, elektrische kookplaat, koelkast en boiler ten behoeve van warm water en de vloeren zijn v.v. van een nette PVC-vloer. De wanden en plafonds zijn v.v. strak stucwerk.
Bestemming:
Het object heeft de bestemming ‘Dienstverlening’. De voor Dienstverlening aangewezen gronden zijn bestemd voor:
Een bedrijf of instelling waarvan de werkzaamheden bestaan uit het bedrijfsmatig verlenen van economische en maatschappelijke diensten aan derden, waaronder zijn begrepen kapperszaken, schoonheidsinstituten, fotostudio’s en naar aard daarmee gelijk te stellen bedrijven en inrichtingen,
Huurcondities:
Huur: op aanvraag
Huurtermijn: In overleg
Huurbetaling: Per maand, vooruit te voldoen
Bankgarantie: ter grootte van 3 maandhuren
Overdracht
Bouwvorm
Oppervlakte en inhoud

Op zoek naar een partner in vastgoed?
Maak kennis met VeTeBe
Wat je vraag ook is, VeTeBe staat voor je klaar.
"*" geeft vereiste velden aan














